Как построить коптильню
Для того, чтобы соорудить коптильню своими руками, не нужны никакие специальные знания.
Достаточно следовать простой инструкции, в которой четко описывается каждый этап работы.
Дополнительно можно воспользоваться специальными чертежами и схемами, которые без проблем можно отыскать в Интернете.
Подбираем подходящее место для коптильни
Очень важно правильно подобрать место, где будет размещаться стационарная коптильня. Причиной этому есть то, что процесс копчения будет связан с дымом, копотью и огнем
Очень важно, чтобы коптильня располагалась вдали от хозяйственных и жилых построек, которые могут располагаться на участке. Это же относится и к зеленым насаждениям. Кроме того, нужно учесть и тот факт, что дополнительно потребуется место, для того, чтобы можно было проложить дымоход.
Схемы, чертежи и размеры
В Интернете можно найти огромное количество схем и чертежей, с помощью которых возводить коптильню из кирпича будет намного проще.
Если говорить о размерах конструкции, то стоит ориентироваться на собственные предпочтения.
На размер будет влиять то, какое количество продуктов будет коптиться за один раз, какое место можно отвести под постройку и прочее.
Как правильно соорудить фундамент

Для заливки фундамента, как правило, используется цементно-песочная смесь, в которую нужно будет добавить гравий или щебень. Иногда траншея для фундамента засыпается строительным мусором и сверху заливается бетоном. Из-за того, что на коптильню из кирпича будет приходиться небольшая нагрузка, то такого фундамента будет вполне достаточно.
Для этого он накрывается слоем качественного рубероида. Идеальным вариантом будет дополнительное обустройство цоколя. Для этого делается опалубка из дерева, ширина которой будет несколько больше, чем у заложенного фундамента.
Какой использовать кирпич и как его укладывать
Для возведения коптильни можно использовать исключительно огнеупорный кирпич. Выкладывается он точно так, как и в любом другом случае возведения постройки. Для того, чтобы материал прочно держался, используется смесь из цемента и кирпича.
Как правильно возвести топку

С внешней стороны конструкция обкладывается кирпичом. За счет этого ее можно будет защитить от неблагоприятных погодных условий и сделать коптильню внешне привлекательной.
Монтируем подвод для дыма

После того, как стены будут готовы, нужно сделать перекрытие верха коптильни. Для этой цели подойдет самый обычный красный кирпич. Камера для копчения должна устанавливаться очень аккуратно. Ее глубина не должна быть больше 30 сантиметров, чтобы конструкция была более удобной в использовании.
Правильное изготовление дымохода
Все коптильни имеют примерно одинаковый принцип возведения
При чем неважно, какие именно размеры будет иметь само устройство или его внутренние элементы
Важно уделить особое внимание изготовлению дымохода, ведь данный элемент считается одним из самых важных в коптильне из кирпича
После того, как дымоход будет полностью выложен кирпичом, необходимо подождать некоторое время, чтобы раствор полностью высох. После этого дымоход тщательно засыпается небольшим слоем земли, который будет ограничиваться коптильной камерой.
Стоит отметить, что дымоход может входить в камеру для копчения максимум на 30 сантиметров. При этом слой земли, который насыпается на готовый дымоход, не должен превышать 15 сантиметров.
Какие размеры коптильной камеры лучше выбрать

В верхнюю часть камеры необходимо забурить штыри из прочного металла. На них потом будет монтировать решетка или прутья со специальными крючками для копчения продуктов. В нижней части камеры нужно сделать крепления для мешковины. Она будет выступать в качестве натурального фильтра для выделяемого топливом дыма. Посередине делается крепление, на которое устанавливается съемный поддон для сбора жира.
Верхняя часть камеры должна закрываться специальной крышкой, с помощью которой можно будет регулировать плотность дыма. В том случае, если планируется провести дополнительный монтаж крыши устройства, то стоит сделать несколько отверстий, которые будут служить вентиляцией и при необходимости, которые можно будет открыть.
После того, как каркас коптильни из кирпича будет полностью готов, можно приступать к установке дверей и монтировать приспособления, на которые будут раскладываться продукты для копчения.
Дополнительные элементы для коптильни
Это позволит сделать процесс копчения самых разных продуктов более простым и быстрым. Копчености за счет этого будут получаться более вкусными и ароматными, а на их приготовление не нужно будет тратить много времени.
Коптилка горячего копчения своими руками: материалы изготовления
Устройства, которые используются в домашних условиях, подразделяются на стационарные и мобильные. Первые из них требуют обустройства кирпичного основания, что позволяет избежать перекоса конструкции. Для монтажа фундамента используют следующие материалы:
кирпич (огнестойкий);

Для стационарной конструкции коптильни прежде всего необходим надёжный фундамент
- тротуарную плитку;
- цемент.
При сборке мобильных коптилен горячего и холодного копчения своими руками необходимо заострить внимание на одном моменте, который позволит увеличить универсальность устройства. Такие приборы рекомендуется оснащать металлическими ручками для удобства транспортировки
Чаще всего материалом, из которого изготавливаются коптильные камеры, служит стальной лист. Он не должен быть слишком тонким, иначе конструкция прогорит. Желательно, чтобы этот показатель был не ниже 1 мм. Для сборки резервуара больше всего подходит нержавеющая или оцинкованная сталь. Такие металлы обладают не только высокой огнеупорностью, но и устойчивостью к коррозийным воздействиям.
В случае необходимости данный агрегат можно купить. Коптильни горячего копчения имеют разную стоимость. При сборке коптилки горячего типа своими руками нередко применяют подручные материалы. Среди них можно выделить металлические ведра и бочки, а также газовые баллоны. Существуют стационарные модели, для изготовления которых используется кирпич. Такие устройства могут прослужить несколько десятилетий в зависимости от того, насколько надежно была выполнена как сама конструкция, так и ее основание.

При изготовлении коптилки горячего кпчения своими руками нередко применяют подручные материалы
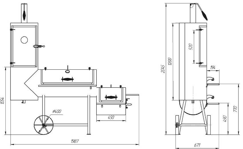
Коптильня своими руками горячего копчения: размеры
Перед составлением чертежа коптилки необходимо определиться с вопросом, для чего она будет использоваться
Важно сразу рассчитать количество продуктов питания, которые будут располагаться в ней за 1 раз. В зависимости от этого определяются габариты будущей конструкции
Во время расчета размера агрегата стоит учесть, что продукты должны находиться на удалении друг от друга. Такая дистанция необходима для свободного проникновения дыма к каждому продукту. Оптимальное расстояние в этом случае составляет приблизительно 6 см
Во время определения габаритов коптильни горячего копчения для рыбы и мяса также берутся во внимание и другие показатели:
- дистанция от топлива до собирательного поддона;
- расстояние от поддона до продуктов;
- дистанция от продуктов до крышки коптилки.

Схема с размерами коптильни горячего копчения
В случае если вы хотите собрать коптильный агрегат для дачи или частного дома, то тогда можно изготовить более габаритную конструкцию. Стандартный вариант коптилки в этом случае имеет следующие размеры: 50х30х30 см. Показатель толщины стенок такого устройства должен составлять не менее 2 мм. Такие агрегаты позволяют проводить горячее копчение свинины, говядины, рыбы, сыра, овощей и грибов.
В свою очередь, расчет габаритов домашней коптилки, которая будет располагаться на кухне, целиком и полностью зависит от размеров варочной панели. Стандартный вариант плиты, как правило, имеет размер 50х60 см. Руководствуясь этими показателями, можно подобрать оптимальное устройство для копчения. Специалисты рекомендуют покупать коптилки 45х25х25 см (для стандартных плит).
Статья по теме:
Коптильня в домашних условиях
Как сделать конструкцию для копчения в домашних условиях? Для работы понадобится:
- Лопата;
- Бочка объёмом 100 л;
- Деревянные доски;
- Гофрированная труба для воздуховода;
- Пила;
- Герметик для замазывания щелей.
Первым делом необходимо выкопать углубление для топки. Его глубина должна быть равна 50 см. Длина не превышать размера 50 см.
От печного отдела копаем траншею для размещения гофрированной трубы. Длина углубление должна составлять 100 см. Помните, что расстояние между топкой и коптильной камерой должно быть не менее 150 см.
Бочку для копчения будем располагать над воздуховодом. Предварительно в нижней части делаем сквозное отверстие, диаметр которого равен объёму гофрированного элемента. Места соединения обрабатываем герметиком. Для бочки можно изготовить деревянную крышку или металлическую. Изделия из древесины должна плотно прилегать к емкости.
Внутри емкости фиксируем металлические пруты для крепления продуктов. Для этого дрелью делаем сквозные отверстия, в которые будем помещать металлические изделия. Щели и углубление обрабатываем герметиком. Из проволоки делаем крючки для крепления.
Деревянными досками укрываем район дымохода. Печной отдел будем закрывать металлической крышкой. Её можно изготовить из оцинкованной стали. Размеры изделия должен быть больше на 5 см, чем яма для топки. На фото коптильни холодного копчения представлено готовое сооружение.
Как сделать походную коптильню для рыбы своими руками
Переносную конструкцию делают из металлического листа толщиной 0,3-0,5 см. Коптильня для рыбы состоит из короба, крышки, решетки и поддона. Инструкция изготовления:
- Размеры короба: 25 см ширина, 45 см длина и 20 см высота. Поддон размещаю на высоте от днища 5-7 см. Решетку устанавливают на 10 см выше поддона. Из металлического листа вырезают детали по чертежу. Все элементы соединяют при помощи сварочного аппарата
- К торцам и крышке приделывают ручки.
При желании на крышку монтируют термометр, чтобы удобно было регулировать температуру внутри камеры
- На крышке проделывают отверстие для отвода лишнего дыма. К нему крепят трубку.
По периметру приваривают металлический уголок, в получившийся желоб наливают воду для лучшего смыкания крышки
Такой коптильней можно пользоваться как на природе, так и в квартире. Благодаря гидрозатвору крышка прилегает очень плотно и не позволяет сочиться дыму.
Как самому сделать коптильню горячего копчения для рыбы
Изготовление коптильни для рыбы сводится к обустройству шкафа. В качестве топки используют мангал, электропечь, газовую плиту. Чтобы соорудить наиболее функциональную конструкцию горячего копчения, потребуются инструменты и материалы:
- три пустых газовых баллона;
- сварочный аппарат;
- болгарка;
- металлическая труба диаметром 8-10 см;
- металлический профиль для ножек изделия.
Емкости из баллонов можно заменить на камеры из бочек. Этапы работ:
- Из металлического прута изготавливают ножки.
Высота ножек 60-78 см, зависит от личных предпочтений хозяина - Из одного баллона изготавливают центральную часть – мангал. Для этого намечают маркером место для крышки, вырезают при помощи болгарки.
По бокам проделывают отверстия для вентиляции, с другой стороны выпиливают надрезы для установки шампуров - На торцах вырезают отверстия для монтажа дымоходной трубы.
Прикладывают трубу, намечают ее размер и отрезают - Делают топочную камеру из половины второго баллона. Для этого баллон разрезают на две части, размечают крышку и вырезают ее. Приваривают ножки.
Листом железа толщиной 0,3-0,5 см закрывают торец, оставляя место соединения камер незакрытым - Детали крепят между собой, топочную камеру крепят на 20 см ниже мангала.
Элементы приваривают друг к другу отрезком трубы длиной до 10 см - Готовят камеру для горячего копчения рыбы. Отрезают днище у первого баллона и приваривают остаток от второго. Получают шкаф. Определяют место для дверцы. Делают отверстие. Внутри конструкции приваривают болты, на которых будет установлена решетка. На крышке крепят трубу 50-70 см, которая является дымоотводом. К ней приделывают заслонку для регулировки температуры.
Сверху приваривают крюки из металлического прутка сечением 0,5-0,8 см - Все элементы соединяют в единую конструкцию.
При желании сооружение снабжают колесами
Многофункциональная печь готова. Такое сооружение позволяет делать барбекю, шашлыки, жарить плов, установив казан на топку.
Коптильня для рыбы своими руками на видео:
Как это работает
Коптильня горячего копчения имеет следующий принцип работы: блюда готовятся благодаря большому количеству дыма, которое выделяет древесная щепа, если ее достаточно прогреть. Нужно только следить за тем, чтобы она не воспламенялась, а постепенно тлела.
В условиях, при которых нет специальных термометров, выявить подходящий способ копчения блюд можно только на основании опыта.

Схема устройства коптильни горячего копчения

Чтобы копчение не превратилось в горение, стоит убедиться в том, что крышка достаточно хорошо (без зазоров) подходит к корпусу коптильной камеры. Для надежности ее лучше сверху придавить кирпичом: при постоянном использовании коптильни металл неизбежно покоробится, в результате чего крышка уже не будет прилегать так плотно, как раньше.
Способ копчения ложится в основу коптильни:
- чтобы изготовить устройство холодного копчения , яму для очага следует расположить на некотором расстоянии от коптильной камеры, соединив их специальной трубой;
- если предпочтительно горячее копчение, очаг с углями нужно расположить прямо под коптильной камерой.
Что нужно для работы
Для изготовления коптильни потребуется:
- чертёж;
- полоса листового металла толщиной 1,5-2 мм;
- рулетка, угольник, маркер;
- турбинка с отрезным и шлифовальным диском;
- сварочный аппарат;
- металлический уголок;
- сварочные электроды диаметром 3 и 6 мм;
- патрубок.

ФОТО: img3.board.com.uaМожно взять лист старого, бывшего в употреблении металла
ФОТО: obinstrumente.ruЧертёж переносной коптильни
Изготовление стационарной коптильни горячего копчения из кирпича
После того, как вы потренировались на изготовлении простых коптилен, можно приступать к выкладке монументальной конструкции из кирпича.
Какие материалы и инструменты понадобятся для работы
Для возведения коптильни горячего копчения нам понадобятся:
- огнеупорный кирпич, подойдёт и керамический, а вот силикатный использовать нельзя;
- глина;
- ёмкость для раствора;
- строительные инструменты: уровень, шпатель, молоток, кельма, лопата;
- решётка и прутья;
- металл для дверцы и крыши;
- стальная сетка;
- бетон;
- щебень и песок;
- рубероид и битумная мастика.
Чертёж и порядовка
Для горячего копчения очаг необходимо расположить непосредственно под камерой. Дымоход предпочтительнее сделать из кирпича или металла, поскольку это также влияет на вкус продуктов. Для защиты от осадков сверху нужно установить стальной колпак. Ещё одну важную деталь потребуется предусмотреть заранее – съёмный поддон, в который стекают соки и жир во время копчения. Это даст возможность вовремя очищать его, что позволит избежать образования нагара.
Чертёж коптильни горячего копчения из кирпичаПодробная порядовка кирпичной кладки
Пошаговая инструкция
Поскольку коптильня из кирпича – это стационарная конструкция и переместить её не получится, необходимо тщательно выбирать место для возведения. Желательно расположить её подальше от деревьев и строений, чтобы не нанести им урон. Площадка должна быть ровной. Можно дополнительно подвести водопровод и установить небольшой столик. Рассмотрим весь процесс строительства коптильни более подробно.
Заложение фундамента
Этапы возведения фундамента следующие.
- Вырыть неглубокую яму около 30-40 см.
- На дно уложить песок и щебень, утрамбовать их и выровнять.
- Уложить сверху стальную сетку.
- Залить бетонной смесью.
- После полного застывания бетона уложить на битумную мастику рубероид для гидроизоляции.
Для семьи достаточно небольшой коптильни, площадь основания которой 1м²
Как сделать устройство своими руками
Основные этапы изготовления:
- подготовка схемы — планирование размеров, функциональных характеристик и дополнительных особенностей устройства;
- выбор материалов и инструментов;
- непосредственное изготовление;
- сборка;
- установка на необходимом месте, прокладка трубы, устройство печки.
Схема
Чтобы самому изготовить коптильню холодного копчения в домашних условиях с нуля нужно подготовить план работ и выполнить подробную схему устройства, которая будет включать:

Фото 3. Схема коптильни холодного копчения с дымогенератором. Указаны части конструкции, также потоки холодного и горячего воздуха при готовке.
- печь или дымогенратор опилок;
- коптильню;
- дополнительные элементы (ручки, разборные участки, дополнительные крышки, крюки, плитки, решетки, столешницы, навесы).
Справка. Ярусы решеток должны находиться как минимум на расстоянии 15 см друг от друга. Расстояние от дымогенератора до коптильни должно быть в среднем от 3 до 5 метров.
Материалы
В качестве материала хорошо подойдет обычная или нержавеющая сталь толщиной до 3 мм, можно использовать готовый металлический ящик или бочку. В качестве дополнительных материалов могут служить металлическая сетка или арматура. Они необходимы для создания решеток и крюков, на которые подвешивается мясо.
Для очага и прокладки трубы дымохода можно использовать кирпич, осколки кирпича, булыжник, камень, гальку, которые промазываются глиняной смесью.
Не стоит выбирать материалы, где содержится свинец, алюминий, оцинковка и другие примеси — при нагревании они выделяют вредные для человека вещества, которые могут испортить пищу.
Внимание! Если планируется окраска коптильни с внешней стороны, необходимо выбирать термоустойчивые краски, не дающие вредных испарений при нагревании
Подготовка
Для создания холодной коптильни понадобится проект, который может быть нарисован от руки. Потребуются следующие инструменты:

- болгарка;
- аппарат для сварки;
- угол столярный;
- метр и рулетка;
- молоток;
- аппарат для шлифовки;
- плоскогубцы;
- дрель.
Необходимые материалы:
- металлические листы;
- куски тонкой арматуры или металлическая сетка для решеток;
- болты и гайки из жаропрочных сплавов;
- кирпич или иные материалы для печи;
- металлическая печная труба для дымохода.
Важно! Для создания герметичности нужно провести качественную сварку внутренней и внешней сторон камеры коптильни, применять клепку или болты с гайками тут неэффективно
Как построить печь и дымоход
Для создания печи необходимо:

- выкопать яму или выбрать естественное углубление на участке;
- выложить в яме костровище с отверстием для вывода дыма;
- в очаге можно оборудовать участок для расположения углей и опилок или просто организовать костровое место и коптить при помощи дров дуба, ореха, фруктовых деревьев и веточек можжевельника;
- сверху очаг необходимо накрыть металлическим листом или оборудовать для него крышку, можно сделать небольшую надстройку с люком и термометром для более пристального контроля горения.
Для создания дымохода необходимо:
- вырыть траншею от костра к коптильне длиной от 4 до 7 м, проложить ее кирпичом, сверху накрыть металлическими листами или рубероидом, присыпать землей;
- вывести траншею к отверстию под камерой копчения и боковому отверстию очага.
Справка. Вместо траншеи можно организовать штольню или провести воздушный дымоход из металлической трубы.
Пошаговое создание коптильни
Коптильня должна быть герметичной, для этого рекомендуется использовать сварку.
Для того чтобы создать устройства, необходимо следовать инструкции:

- Вырезать из подготовленного металла при помощи болгарки или иного инструмента четыре сегмента равных размеров по длине и ширине.
- Скрепить первые два сегмента друг с другом сваркой.
- Скрепить сваркой остальные две стенки.
- Проварить внутренние швы для герметичности устройства.
- Выполнить днище — оно должно иметь отверстие и крепления для подключения дымохода.
- Выполнить крышку из листа металла, который на 10—15 см превышает поверхность верхней стенки коптильни, это необходимо для того, чтобы загнуть крышку с каждой стороны, проварить и обеспечить герметичность. У крышки могут быть отверстия для жесткого крепления к коптильне, а также ручка для переноски. Крышку можно сделать плоскую или в форме домика.
- Выполнить решетку из арматуры, расположить на внутренних стенках устройства, под решеткой наварить крючки для установки жирового поддона.
- Коптильня устанавливается над отверстием дымохода на столбиках из кирпича или металлических ножках, под решеткой или крюками для мяса располагается фильтр из войлока, задерживающий продукты горения.
Практика
Для того, чтобы собрать полностью коптильню из холодильника, понадобится буквально час времени, минимальное количество дополнительных материалов и самые простые инструменты, которые есть в каждом доме. Для того, чтобы сборка не отняла много времени, стоит заранее подготовить все, что может понадобиться во время монтажа устройства.
Из материалов для создания самодельной коптильни понадобится непосредственно корпус холодильника, а также металлическая труба, которая будет использоваться для создания дымохода (достаточно длины четыре метра), кирпич или старая электрическая плитка для топки. Из инструментов могут потребоваться дрель, резак по металлу, лопата, сварочный аппарат, горелка, наждачная бумага.
Для обустройства коптильного шкафа необходимо выполнить следующие действия.
- Сделать отверстия для решеток, на которые будут выкладываться подготовленные заранее продукты.
- На потолок коптильного шкафа крепятся крючки, изготовленные из нержавейки. С их помощью будет удобно коптить продукты в подвешенном состоянии.
- В потолке дополнительно делается вентиляционное отверстие, которое будет использоваться во время разжигания щепы.
- В днище конструкции делается отверстие такого же размера, как и диаметр используемой для дымохода трубы.
Предлагаем ознакомиться Отошла, отклеилась резинка на двери холодильника
Чтобы коптильня имела привлекательный внешний вид, стоит удалить все ржавые пятна или потеки с помощью наждачной бумаги, металлической щетки и специальных чистящих препаратов.
Трубу дымохода нужно приварить с помощью сварочного аппарата. Непосредственно под вентиляционным отверстием стоит установить вентилятор со средней мощностью. На самое дно коптильного шкафа ставится емкость, в которую будет капать жир во время обработки продуктов.
Особенно важно это в холодное время года. Чтобы можно было наблюдать за процессом копчения и при этом за каждым разом не открывать дверцу, одна из стенок холодильника оборудуется огнеупорным стеклом. В коптильне холодного копчения из холодильника, топка будет находиться отдельно от коптильного шкафа
Для обустройства костра можно использовать несколько разных вариантов
В коптильне холодного копчения из холодильника, топка будет находиться отдельно от коптильного шкафа. Для обустройства костра можно использовать несколько разных вариантов.
- Ненужная емкость из толстого железа. Ее необходимо зарыть в землю таким образом, чтобы она находилась немного ниже уровня коптильни. За счет этого дым будет постепенно подниматься вверх в коптильный шкаф, а не рассеиваться в разные стороны.
- Огнеупорные кирпичи. Ими выкладываются стенки ямы так, чтобы осталось место для костра.
- Оцинкованный железный лист. Он кладется на дно ямы и на нем можно разжигать костер.
Каждый из вариантов одинаково хорош, поэтому неважно, какой метод обустройства топки будет выбрано. Главным моментом есть то, что нужно правильно сделать дымоход, чтобы дым остывал до нужной температуры прежде, чем попасть непосредственно в коптильню
Дымоход
Для того, чтобы сделать дымоотвод, в потолке коптильного шкафа делается отверстие с таким же диаметром, как и используемая труба. В само отверстие вставляется вентилятор и затем с помощью сварочного аппарата приваривается непосредственно сама труба. Не обязательно брать трубу слишком большого диаметра, ведь тогда будет выходить очень много дыма, а процесс копчения затянется еще дольше.
Коптильня из холодильника не будет эффективной, если в ней не будет никаких дополнительных приспособлений. Важную роль играют качественные металлические решетки или крючки, на которые раскладываются заранее подготовленные к копчению продукты.
Предлагаем ознакомиться Сделать светодиодную подсветку для рассады своими руками
Решетки и крючки
Затем старые решетки, которые использовались в комплекте с холодильником, необходимо обжечь горелкой. Это позволит полностью удалить всю краску и ржавчину. Дополнительно решетки зачищаются с помощью железной щетки. С сделанные заранее отверстия устанавливаются пазы. На них будут крепиться сетки из металла, шампуры для приготовления домашних копченостей.
Если говорить о крючках, то их стоит прикрепить к верхней стенке коптильного шкафа. С их помощью будет очень удобно коптить рыбу или достаточно большие куски мяса.
Ставить их нужно примерно на том уровне, где будут располагаться обрабатываемые продукты.
https://youtube.com/watch?v=_cbNR42Uumg
Из чего можно и нельзя делать?
В сущности, коптильня – простой контейнер, который задерживает дым от тлеющего огня. Это очень медленная печь, в которой температура редко превышает 200 градусов. Для копчения существует много различных конструкций. Однако при постройке оных применяют чаще всего следующие материалы: древесина, металл, кирпич или блоки. Не имея опыта кладки камня и сварочных работ, выбирайте дерево. С ним работать легко и быстро.
В качестве устройства для копчения можно использовать любую подходящую безвредную для продуктов питания конструкцию. Главное, чтобы она держала дым внутри, и была возможность закрепить мясо. Необязательно придерживаться одного типа материала при строительстве. Можно использовать дерево, кирпич, камень, металл и комбинировать их. Эти материалы легкодоступны.

Листы металла лучше использовать толстостенные, потому что тонкий металл от высокой температуры и ржавчины быстро сгниет. Отличным вариантом станет сталь, алюминий. Для внутренней камеры, где непосредственно находятся продукты, не подходит железо с цинковым покрытием (оцинковка). Цинк не считается материалом, безопасным для пищевых продуктов. Во время копчения он выгорает, образуется окись цинка, который попадает в пищу и отправляет ее. Есть такие продукты не безопасно для здоровья.
Труба
Основой для такой коптильни станет металлическая труба с диаметром от 30 см и длиной от 50 см. В этом случае коптильню можно сделать как с вертикальной, так и с горизонтальной ориентацией.
Горизонтальная коптильня
Для изготовления горизонтальной коптильни из трубы понадобятся такие материалы и инструменты:
- Труба с указанными выше параметрами. Материал, из которого она изготовлена, должен быть достаточно толстым – в таком случае коптильня прослужит долго.
- Лист нержавеющей стали.
- Металлические уголки. Их суммарная длина должна быть равна четырем длинам коптильни.
- Металлическая решетка.
- Поддон для сбора вытапливающегося жира.
- Болгарка.
- Отрезной диск для работы по металлу.
- Сварочный инвертор.
- Линейка.
- Мел для разметки.

Длина коптильни должна рассчитываться, исходя из параметров топки, на которую будет установлена коптильня. В качестве топки может выступать мангал, установка из кирпичей.
Коптильня может быть без топки, но в этом случае ко дну камеры нужно приварить ножки. Огонь можно разводить прямо под корпусом коптильни.
Сборка коптильни выглядит таким образом:
- Вначале из листа металла вырезают 2 круга. Их диаметр равен сечению корпуса. Один круг приваривают ко дну трубы наглухо. Второй круг будет выполнять функцию дверцы, поэтому его нужно посадить на петлю и приварить к корпусу. К дверце приварить крючок для закрывания и ручку.
- Приварить уголки внутри корпуса, они должны располагаться немного ниже центра. Длина уголков с каждой стороны должна быть на 3-4 см короче длины изделия. Функция уголков – направляющие для решетки. Если предусмотрена установка поддона, то нужно приварить уголки и для него.
- Внизу приварить уголки для устойчивости конструкции. Они должны быть приварены на 1 см ниже уровня наиболее выступающего участка.
- Сварить между собой решетку и поддон.

На дно коптильни кладут щепки, рыбу раскладывают на решетке. Коптильню устанавливают на топку, в ней разводят огонь.
Вертикальный вариант
При вертикальной ориентации эта коптильня может быть только стационарной.
Для изготовления нужны:
- труба, высота может быть любой, диаметр от 40 см;
- ручка для крышки;
- металлические уголки;
- решетки металлические;
- металлическая лента с шириной от 5 см;
- арматура;
- дымоход металлический с диаметром 10 см;
- листовой металл.

Собирать коптильню из трубы вертикальной ориентации нужно так:
- Один край трубы заварить кругом, вырезанным из листа металла. Круг должен быть достаточно толстым, чтобы не прогорело дно.
- Вырезать круг, диаметр которого будет превышать диаметр корпуса на 2-5 мм. По окружности наварить ленту – этот круг будет выполнять функцию крышки коптильни.
- Вырезать на крышке отверстие для дымохода, длина которого будет составлять 15-20 см.
- В отверстие вварить дымоход.
- Приварить к крышке ручку.
- Металлические решетки скрепить при помощи арматуры. Ее нужно согнуть в форме буквы П и приварить по глубине коптильни к решеткам с двух сторон. Другую часть арматуры приварить перекрестно. Расстояние между решетками должно составлять 20 см. Образованную конструкцию поместить внутрь корпуса.
- Ко дну приварить ножки. Их высота должна составить 20-30 см.

Костер нужно разводить под днищем корпуса.
Коптильни холодного копчения с дымогенератором, чертежи с размерами
Коптильня холодного копчения (ХК) имеет свои особенности, которые отличают ее от других устройств:

Фото 1. Чертёж коптильни холодного копчения, выполненной из металла. Указаны размеры всех элементов.
- Нахождение коптильни и дымогенератора на некоторой дистанции от самой камеры. Обычно костер располагается на расстоянии 5—10 метров от коптильни, в зависимости от размеров камеры, необходимой температуры дыма и температуры в используемой печи или костре.
- Наличие между коптильней и генератором дыма герметичной трубы, по которой проходит дым.
- Необходимость обеспечивать фильтрацию продуктов горения.

Фото 2. Чертёж и компьютерная реконструкция дымогенератора для коптильни холодного копчения.
Самая простая схема холодной устройства выглядит следующим образом:
- Костер или печь, расположенные ниже коптильни, разделенные на участок с углем (топку) и участок с тлеющими опилками и веточками, дающими дым. Дымогенератор выкладывается огнеупорным кирпичом или заливается устойчивым к температуре бетоном, сверху может располагаться небольшое сооружение из кирпича или металлическая коробка, препятствующая выходу дыма.
- В качестве трубы-дымохода используется любая подходящая металлическая или огнеупорная пластиковая труба. Это может быть просто траншея, прикрытая сверху металлическими листами или рубероидом и присыпанная землей для герметизации дыма.
- Коптильная камера (дымовой шкаф) с отверстием снизу, куда проходит дым, с решеткой либо с крюками для расположения мясных или рыбных заготовок. Сверху элемент может накрываться металлической крышкой, рубероидом или плотной материей.
Важно! Размер коптильни зависит от поставленных задач и предполагаемых объемов продуктов. Устройство должно быть крупнее горячей коптильни для дома, поскольку нет смысла в течение 3—5 дней коптить 2—3 маленьких рыбешки или куска мяса
Стандартная коптильня должна вмещать 5—10 кг заготовок.





































