Инструкция по изготовлению
Приступая к производственному процессу, необходим начать с подготовки всего самого необходимого:
- Трубы со следующими диаметрами – 30 см, 5-6 см, 10 см (толщина стенок каждой – не менее 3 мм)
- Стальной лист по толщине более 4 мм
- Болгарка
- Аппарат для сварки
- Ручные инструменты
Располагать котел рекомендуют на выровненной твердой поверхности. Если такая установка будет монтироваться дома в котельной, следует подумать об обустройстве фундамента, несколько слов о котором будет сказано позже.
Приступаем к изготовлению котла:
- Берется подходящая по характеристикам труба и отрезается кусок от 70 до 100 см. Малая длина не позволит загрузить достаточное количество дров, большая – сделает закладку крайне неудобной
- Теперь необходимо соорудить распределитель. Чтобы он свободно двигался, его диаметр делается на 15-25 мм меньше основной трубы
В центре круга требуется просверлить отверстие диаметром 15 мм – через него будет поступать воздух в камеру горения. Чтобы диск плотно не прилегал к паленьям и оставалось пространство для циркуляции воздуха, необходимо приварить ко внутренней его стороне крыльчатку – несколько пластин высотой до 5 см
Труба диаметром 5-6 см приваривается по центру регулятора, при этом ее высота делается на 10-15 см больше котла
Как упоминалось ранее, вверху рекомендуется сделать заслонку, которая позволит регулировать тягу в любой момент, тем самым контролируя процесс тления
Внизу болгаркой вырезается дверца, посредством которой будет удаляться зола
Также в нижней части котла надежно приваривается дно
Вверху необходимо пустить горизонтальную дымоходную трубу диаметром 8-10 см и длиной не более 40 см (именно она пропускается внутри теплообменника)
Завершающий штрих конструкции – крышка для котла, в которой вырезано отверстие под воздухозаборную трубу. Она должна как можно плотнее запирать камеру
Хорошей альтернативой дровам является брикеты отопления — смотрите наш обзор
Дымоход и отражатель
Стенки котла будут постоянно раскаляться и излучать тепловую энергию. Если установка монтируется для отопления небольшого помещения, следует расположить вокруг нее отражатели – они будут распределять поток, увеличивая поступления тепла во внутрь.
Если печь будет располагаться в помещении с постоянным пребыванием людей, следует подумать об их безопасности. Один из вариантов решения вопроса – обложить конструкцию кирпичной кладкой.
Дымоход можно сделать из трубы 20 мм. Горизонтальный прямой участок должен на 5-10 см быть больше диаметра топочной. Выводить его на улицу необходимо с минимальным количеством перегибов – 2 по 45 градусов.
Несколько других особенностей:
- Дымоход рекомендуется делать разборным, чтобы 2-3 раза в сезон его можно было без труда почистить от копоти
- Соединяться участки дымохода должны в направлении, противоположном движению газа
- Все конструкции и предметы, которые подвержены легкому воспламенению, должны быть отнесены на безопасное расстояние
Возводим фундамент
Можно предположить, что печь длительного горения на дровах будет постоянно разогреваться до высоких температур. Простой выровненный пол для не нее является не самым лучшим решением – следует возвести фундамент.
Основание можно выложить из жженого кирпича или бута. Они не раскаливаются под действием повышенных температур. Все те, кто желает сделать более основательный фундамент, могут залить цельную монолитную плиту.
Котел можно также установить на ножки, которые легко варятся из швеллера. Они прячутся от глаз за кирпичной кладкой.
Использование котла
Поступать в котел длительного горения на дровах воздух должен, в отличие от классической печи, в определенном количестве. Чтобы этого достичь, закладку необходимо делать в полном объеме, стараясь не оставлять свободных полостей. Рекомендуется к поленьям добавлять опилки, пеллеты, торф или сгораемый мусор.
Закладывать топливо необходимо по следующей инструкции:
- Снять крышку и удалить регулятор с бака
- Заложить плотно топливо
- Разбрызгать поверху горючую жидкость
- Установить регулятор, накрыть крышкой и открыть заслонку
- Брось в воздушную трубу лучину и когда начнется тления заслонку прикрыть
Подводим итоги
Простой котел длительного горения на дровах готов. У становить такую конструкцию можно в любом неотапливаемом помещении: от небольшого гаража до мастерской. Если все было сделано правильно – сомневаться в эффективности и высоком КПД не придется.
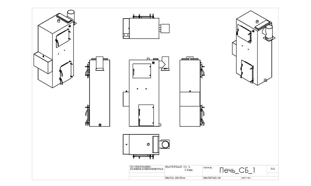
Чертежные работы
Мы рекомендуем использовать чертежи, приложенные к данной статье. В них вы найдете схемы раскроя листового металла, сможете ознакомиться с технологией сборки. Для просмотра схем необходимо воспользоваться программой DWG True View. Это самые подробные чертежи пиролизного котла, которые трудно найти в интернете, да еще и бесплатно.

Схема одного из вариантов пиролизного котла. В представленном в конце статьи архиве будет еще несколько вариаций внешнего вида.
Воспользуйтесь данными чертежами, и вы сможете собрать отличный пиролизный котел своими руками.
Также вы можете воспользоваться схемами от специалистов – средняя стоимость таких чертежей составляет около 30-50 долларов США. Все остальные схемы в сети носят лишь схематический характер.
Достоинства и преимущества самоделки
Прежде чем мы рассмотрим, как сделать пиролизный котел своими руками, следует рассмотреть плюсы и минусы конструкции. Нельзя сказать, что самоделки чем-то плохи, но и до идеалов им далековато. Но в целом они имеют полное право на существование. Для начала рассмотрим их положительные черты:
- Низкая себестоимость – нужно приобрести железо и трубы, а инструмент у работящего человека есть всегда. При наличии халявного железа можно собрать пиролизный котел своими руками почти бесплатно, потратившись на сварочные электроды и отрезные круги для болгарки;
- Экономия на топливе – если агрегат будет собран правильно, он будет давать солидное количество тепла, эффективно разлагая древесину на кокс, уголь, золу и горючие газы;
- Возможность регулировки интенсивности горения и температуры в отопительном контуре – для этого придется приобрести управляющую электронику;
- Эффективный обогрев домов большой площади – ничто не мешает изготовить своими руками пиролизный котел довольно высокой мощности, до 25-35 кВт. Такая мощность позволит обогреть площадь до 200-300 кв. м.
Есть и недостатки:
Чистка котла от продуктов горения – процесс несложный, но рутинный и требующий постоянного внимания.
- Трудно добиться того КПД, что присущ пиролизным котлам заводского производства. Но если тщательно следовать схеме изготовления и не допускать вольностей, получится отличный эффективный агрегат;
- Сложность расчетов – многие люди изготавливают самодельные пиролизные котлы на дровах длительного горения по собственным схемам. Но для этого нужны определенные знания, которые есть не у всех;
- Внушительные размеры оборудования – агрегат мощностью 25-30 кВт получается весьма солидным и тяжелым;
- Для установки оборудования необходимо отдельное помещение – учитывая громоздкость, можно смонтировать его в подвале дома.
Недостатки не самые страшные, поэтому с ними можно мириться.
Самым главным недостатком является несколько страшноватый вид пиролизного котла, собранного своими руками. Поэтому мы советуем вам проявить аккуратность, чтобы аппарат получился более симпатичным. В заключение всего вы сможете окрасить его огнеупорной краской.
Схемы подключения отопления частного дома своими руками
В случае с монтажом парапетного газового котла, который также может быть двухконтурным, понадобится отдельно устанавливать циркуляционный насос, размещаемый на трубе, являющейся обраткой, а также расширительный бачок и прочие дополнительные обвязки. Даже сегодня есть сторонники такого метода разводки коммуникаций для обогрева помещения. Отсутствие кранов и фитингов делает такую систему также самой практичной по причине минимизации риска возникновения протечек или прорывов воды. И никак иначе
Ставить агрегат допускается своими силами, но при этом важно соблюдать все правила электробезопасности. Причем у такого оборудования фактически нет недостатков, кроме высокой пожарной опасности, которая присуща всем котлам
Однотрубная разводка — самый дешевый вариант
Электрический теплый пол Элементарный по укладке и эксплуатации вид отопления. Из котла водонагревания выходит одна труба и, последовательно оббегая все радиаторы, возвращается назад. Можно в каждой из комнат увеличивать или снижать температуру по необходимости. При обустройстве асбоцементного дымохода понадобится впоследствии его утеплить минеральной ватой с фольгой. Подведение итогов Выше представлена схема установки газового агрегата, который может быть как одноконтурного, таки двухконтурного типа. В этом случае температура всех радиаторов во всех комнатах будет приблизительно одинаковой. В открытом варианте манометр вовсе не требуется. Такие котлы отличаются достаточно высоким коэффициентом полезного действия, но при этом нуждаются в регулярной не менее раз в неделю очистке от продуктов сгорания, монтаже дымохода, организации вытяжной вентиляции и наличии отдельного помещения.
Отопительные приборы
При отсутствии специальных указаний при установке котла используются такие правила: Ширина прохода с лицевой стороны котла должна быть не менее 1м. В небольших частных домах применяются такие типы двухтрубных систем отопления: тупиковая; коллекторная лучевая. Основным минусом такой разводки является некоторое увеличение метража труб. В этом случае горячая вода, идущая от котла, поступает к радиаторам по одной трубе, а отвод уже остывшего теплоносителя выполняется по другой. Считаются одними из самых долговечных и экономичных котлов.
Колебания фиксируются датчиками, и при необходимости система приводит их к нормальным параметрам. Такой насос относится к категории аварийного оборудования и работает на аккумуляторной батарее. Основная задача насоса заключается в подаче остывшей воды в котел для ее нагрева и распределение уже подогретого теплоносителя по системе. К тому же применение такой схемы для отопления с электрокотлом подразумевает сложный процесс балансировки. В комплекте с оборудованием должен идти бокс с защитными автоматами C16, которые монтируются дома рядом с агрегатом.
Обязательным условием правильной циркуляции воды в самотечной системе является монтаж труб под небольшим — до — углом. Даже при использовании многотарифной системы затраты на обогрев дома таким способом будут на порядок выше, чем в случае с дровяным нагревателем. В основе всех котлов, работающих на твердом топливе, положен принцип Колпакова, когда сперва прогревается котел, а далее температура поддерживается на определенном уровне, чтобы обеспечить стабильность нагрева теплоносителя. Чтобы добиться хорошего эффекта в использовании полученной энергии, необходимо установить тепловой аккумулятор. Ведь батареи пойдут по внутреннему периметру, вдоль несущих стен, причем даже последний радиатор должен располагаться немного выше котла. Подключение теплого пола к системе отопления. 4 способа подключения.
Плюсы и минусы
К отрицательным характеристикам твердотопливного котла относят:
- очень высокая стоимость;
- необходимость подготавливать дрова, которые должны быть абсолютно сухими;
- работает от электрической сети.
Несмотря на минусы, у газогенераторного устройства есть и плюсы. Это:
- комфортное тепло с пиролизным котлом;
- достаточно прост в использовании;
- выделяется очень маленькое количество вредных элементов;
- способен довольно долго работать после того, как будет положено топливо;
- можно применять при любом виде системы подачи тепла;
- можно полностью автоматизировать процесс;
- применяется для утилизации таких материалов, как пластмасса, резина и полимеры.
Данный вид твердотопливного кола для отопления в своей особенности конструкции имеет несколько участков: отделения для топки, теплообменник и узел, который подводит воду к устройству.
При самостоятельно сборке пиролизного котла, необходимо правильно сделать схему и чертеж. Затем по ней собрать агрегат, который сразу же можно проверить, а в дальнейшем использовать в быту. Для создания необходимо лишь проследить за герметизацией труб отопления, которые подводят воду, чтобы избежать различных неприятностей в будущем. При правильной сборке котла длительного горения, оборудование очень быстро нагревается до нужной температуры, потратив всего полчаса.

Фото схемы пиролизного котла
Любая газогенераторная машина в своей конструкции содержит две камеры. Одна камера котла служит для наполнения ее необходимым топливом, где происходит разложение на сухие остатки и горючий газ. Он перемещается в следующее отделение. Внутрь оборудования подается дополнительный воздух с помощью специального вентилятора, для того, чтобы эффективнее происходило горение дров. Дым, образующийся в данном процессе, удаляется через установленный дымосос. Камеры отделены между собой колосником, изготовленным из чугуна.
При больших значениях температурного режима и отсутствия кислорода, из древесины выделяется газ, при смешивании его с потоками воздуха происходит нагревание теплообменника до 1200 градусов. После этого тепло передается теплоносителю системы. Отработанные газы выходят через специальную трубу дымохода. В состав входит смесь паров воды и углекислого газа. В дымоходе рекомендуется сделать слой материала, который состоит из минеральной ваты, покрытой сверху специальной фольгой. Он делается для того, чтобы при охлаждении не образовывались деготь и конденсат, которые могут оказать довольно негативное воздействие на трубу.
Все отделения котла на пиролизе оснащены огнеупорочной футеровкой, которая выкладывается из шамотного кирпича. Именно она создается благоприятные условия для сгорания топлива в пиролизном котле.
Как проводить профилактическое техобслуживание.
- Проверяйте и смазывайте краны наружного и внутреннего газопровода.
- Осматривайте терморегуляторы в напольных котлах.
- Промывайте или меняйте фильтрующие элементы.
- Следите за форсунками, плотностью прилегания дверцы, запальником на напольных котлах.
- Препятствуйте образованию наледи у коаксиальной трубы на настенных котлах в зимний период.
- Своевременно заменяйте изношенные детали.
Грамотный профилактический осмотр позволяет улучшить ресурс оборудования и снизит потребление газа.
У вас остались вопросы по монтажу газовых котлов? Специалисты компании TeploMoskva помогут вам определиться с оборудованием, рассчитают его оптимальную мощность и качественно установят смонтируют систему отопления «под ключ». Доверяйте свой комфорт и безопасность профессионалам!
Пламя в камере сжигания
- Горением пиролизных газов можно легко управлять, что позволяет сделать управление котлом автоматизированных.
- Процесс горения в газифицируемой камере управляемый при помощи подачи первичного воздуха. Горение замедленное, а это позволяет на одной закладке дров работать от 5—7 часов до нескольких суток (у котлов верхнего горения).
- В пиролизных котлах можно сжигать крупные не колотые дрова.
- В качестве топлива могут быть использованы древесные отходы, обрезки фанеры, ДСП, ДВП, МДФ.
- Пиролизные котлы в 3 раза меньше выбрасывают в атмосферу вредных веществ.
Недостатки пиролизных котлов:
- Для работы вентилятора или дымососа необходима электроэнергия, поэтому следует озаботиться оснащением котла мощным источником бесперебойного питания.
- При влажности топлива более 20% резко падает КПД котла.
- В случае малых нагрузок возможны перепады в работе котла, что сказывается на отложении дегтя в газоходных каналах. Для постоянной нагрузки котла может потребоваться теплоаккумулятор – для запасания тепловой энергии.

Принцип работы твердотопливных котлов и их устройство
Твердое органическое топливо является самым древним источником энергии для человечества. Отказаться от него полностью, даже в современном мире, невозможно. Тем более, что кроме дров и каменного угля сегодня появилось множество других видов горючих твердых веществ:
- брикеты из торфа – высушенный и спрессованный торф выделяет много тепла при сгорании;
- брикеты из отходов деревообрабатывающего производства – сжатые опилки, стружка и кора деревьев;
- березовый уголь – такой же, как для мангала;
- переработанный мусор со свалок;
- топливные отопительные гранулы – мелкое топливо, полученное прессованием опилок. Могут подаваться автоматически;
- обычные сухие опилки.
Различные варианты сырья для использования в твердотопливных котлах
Ясно, что все это топливо получено путем переработки различных отходов, что решает проблему утилизации на предприятиях и идет в русле «зеленой» экономики.
Полезный совет!Самым доступным топливом, из перечисленных выше, являются древесные опилки. Если вы намереваетесь использовать их для отопления – следите, чтобы они были с влажностью менее 20%. Большие показатели этого параметра не позволят вырабатываться пиролизному газу, так как большая часть энергии нагрева будет идти на просушку топлива.
В результате деятельности человека образуется колоссальное количество отходов, которые могут быть преобразованы в высокоэнергетическое топливо, что и обусловило появление на рынке котлов отопления на твердом топливе длительного горения. В отличии от обычных печей, эти агрегаты работают не на сгорании самого топлива, а на его расщеплении в результате нагревания. В рабочей камере таких котлов сгорают газообразные продукты распада твердого топлива. Такая схема работы является в несколько раз более эффективной, чем обычное сжигание органического топлива. Пиролизный газ, отдает большое количество энергии.
Принцип работы твердотопливного котла длительного горения
Устройство такой газогенераторной установки не очень сложное. Можно даже соорудить своими руками котел твердотопливный длительного горения. Чертеж простейшего варианта выглядит следующим образом:
- закрытый цилиндрический бак, который имеет люк для закладки топлива, поддувало и отверстие для установки дымохода;
- внутри бака расположен распределитель воздуха, который создает завихрение пиролизного газа. Он крепится к подвижной телескопической трубе. Вся эта конструкция, похожая на поршень, давит на топливо сверху. Сгорание газа происходит над поршнем, а топливо тлеет под ним;
- теплообменник встроен в верхней камере, где достигается максимальная температура.
Медленное тление твердого топлива происходит в нижней камере. Оно достигается регулировкой подачи воздуха в поддувало. Выделяемый газ интенсивно горит в верхней камере и нагревает теплоноситель.
Схема системы отопления частного дома с использованием твердотопливного котла
Полезный совет!Не стоит использовать простейшую конструкцию для изготовления котла, который будет обогревать жилой дом на постоянной основе. Для этого нужно, либо приобрести готовое изделие, либо сделать более сложный и надежный вариант.
Котлы на твердом топливе длительного горения могут быть незаменимы в частных домах, в хозяйственных сооружениях, гаражах и теплицах. Особенно они будут выгодны там, где имеется крупное деревоперерабатывающее производство, так как отходы на таких предприятиях отдают практически бесплатно. Необходимы эти агрегаты и в местностях, где бывают регулярные перебои с газоснабжением. У таких установок есть много преимуществ, но существует и один важный недостаток – очень высокая стоимость. Именно поэтому сегодня актуально изготовление своими руками котлов твердотопливных длительного горения. Чертежи для этого можно использовать разной степени сложности. Это зависит от уровня мастерства.
Водяное отопление частного дома своими руками, схемы конструкций. Плюсы и недостатки. Различие естественной и принудительной циркуляции воды.
Вариант №2. Изготовление электродного котла
Электродный котел это более прогрессивная разработка. Такие нагреватели начали массово применять в последние 10–15 лет.
Устройство электродного котла
В качестве нагревательного элемента в электродном котле используется собственно сама вода. Котел это металлический корпус, в который вставлен изолированный от корпуса стальной электрод.
К электроду подключается фаза, а к корпусу ноль, когда подается напряжение, ионы воды начинают колебаться с частотой 50 герц, в результате чего жидкость нагревается. Именно поэтому такие агрегаты еще называют ионными.
Общая схема электродного котла.
Габариты у таких агрегатов небольшие, в качестве корпуса используется труба диаметром до 320 мм и длиной до 600 мм, но это максимум, для частных домов делаются ионные котлы почти вполовину меньше.
Схема отопительной системы с ионным котлом.
Достоинства:
- Довольно скромные размеры, этот котел не будет мешать даже в локальной отопительной системе небольшой квартиры;
- В этих нагревателях нет «сухого хода», то есть, без воды котел просто перестанет работать, но ничего в нем не перегорит;
- Системе не страшны перепады напряжения;
- Быстро нагревается и также быстро остывает, а значит, легко регулируется;
- По сравнению с агрегатами, работающими от ТЭНов электродный котел значительно экономичней.
Электродные котлы намного экономичней ТЭНовых.
Недостатки:
- Ионные котлы очень требовательны к качеству и уровню электропроводности теплоносителя;
- Ввиду повышенной опасности поражения током аппараты нуждаются в надежном заземлении;
- При попадании воздуха в систему электроды активно коррозируют и быстро приходят в негодность.
Собираем ионный котел
| Иллюстрации | Рекомендации |
Материал для корпуса.
| |
| Подгоняем патрубок. Один патрубок будет ввариваться сбоку, второй с торца трубы. Для начала нам нужно подрезать боковой патрубок, чтобы он плотно прилегал к телу трубы. Я подрезал патрубок болгаркой, после чего доводил до идеала круглым напильником. | |
| Вырезаем отверстие. На тот момент у меня не было плазменного резака, поэтому пришлось накернивать трубу по окружности и высверливать отверстия по 5 мм. | |
| Подгоняем отверстие. Дальше при помощи натфеля и круглого напильника окружность доводится до идеала. Расстояние от края трубы до бокового патрубка 10–15 мм. | |
| Привариваем патрубки. Патрубки сначала нужно прихватить сваркой в нескольких местах, чтобы не повело, а потом обваривать шов. | |
| Вырезаем платформу. В качестве платформы я использовал лист стеклотекстолита толщиной 20 мм, ориентировочный размер 120х120 мм, резал его ножовкой по металлу. | |
| Готовим платформу. В платформе высверливаем 5 отверстий, 1 по центру и 4 по периметру (как на фото). Диаметр отверстий 10–12 мм. Через центральное отверстие будет крепиться стальной электрод, а боковые отверстия предназначены для крепления корпуса котла. | |
| Крепление корпуса к платформе. Для того чтобы прочно прикрепить корпус котла к платформе я приварил с 4 сторон гайки на 12 мм. В них легко проходят болты на 10 мм. Но эти «уши» должны быть чуть приподняты над платформой, для обеспечения этого зазора я накрутил на болты «родные» гайки снизу и зафиксировал держатели такими же гайками сверху. Жестко закрепленные «уши» легче приваривать. | |
Сборка котла.
|
Потребительские характеристики пиролизных печей
Достоинства таких отопительных устройств неоспоримы:
- Процесс пиролиза обеспечивает длительное горение топлива в автономном режиме. С одной закладки дров можно получать тепло на протяжении 6-12 часов, а, например, уголь может «работать» несколько дней.
- КПД устройства повышается до 80-90%, что намного больше, чем у традиционных твердотопливных печей. Сокращается расход топлива, больше тепла остаётся внутри дома (об этом можно судить по малой температуре дымовых газов – порядка 160 градусов).
- Удаётся автоматизировать некоторые параметры работы теплогенератора.
- После топки остаётся очень мало золы, соответственно приходится намного реже производить её выборку.
- Продукты горения пиролизных генераторов тепла оказывают минимум влияния на экологию.
Принципиальная схема пиролизного теплогенератора с верхним дутьём Есть и ряд недостатков:
- Большинство пиролизных печей являются энергозависимыми, так как принудительная тяга и наддувы предполагают использование электрических вентиляторов.
- Существуют жёсткие требования к качеству топлива, особенно по влажности.
- Пиролизный теплогенератор не может нормально эксплуатироваться на малой мощности, так как при нагрузке, близкой к 50%, газификация топлива становится нестабильной, а на элементах печи может скапливаться дёготь.
- Конструкция этих печей сложнее, а расходы на строительство выше.
Опыт использования пиролизных печей показывает, что это удобные и эффективные источники тепла. Но построить такое отопительное устройство своими руками всё же очень непросто. Мастер должен быть хорошо подготовлен технически (навыки, инструмент), понадобятся точные, грамотно разработанные чертежи.
Как повысить КПД самодельного котла
Увеличить мощность отопительного устройства можно с помощью установки дополнительного теплообменника, получающего энергию из продуктов горения, выводимых через дымоход.
К повышению мощности котла приводят:
- увеличение объема топки;
- контроль процесса горения;
- увеличение калорийности твердого топлива.

Повысить КПД самодельного котла можно увеличением объема топки.
Топочную камеру можно нарастить только в тех котлах, где предусмотрены дополнительные секции. Если их нет, то придется переделывать всю конструкцию. Но можно установить систему автоматической загрузки расходного материала. Это увеличит время горения.
Равномерное распределение тепла, регулировка силы тяги и мощности позволят оптимизировать процесс выработки тепла. Потребуется установка датчиков температуры, насосов и специальных клапанов.
Эффективная выработка энергии зависит от влажности твердого топлива. При использовании сухих спрессованных брикетов высокой плотности КПД котла становится еще выше.
Применение древесного угля резко увеличивает мощность котла, а дым и зола практически отсутствуют.
Сборка котла отопления на электродах
Устройства данного типа стали активно использоваться лишь в последние 10-15 лет. Это более технологичные приспособления, по сравнению с ТЭНовыми.
Конструкция
В электронных электрических котлах жидкость играет роль нагревательного элемента. Собранный своими руками электрический котел данного типа представляет собой корпус из металла, внутри которого расположен изолированный стальной электрод.

На корпус подается 0, а на электрод — фаза. Во время подачи напряжения начинается колебание ионов воды с частотой в 50 герц. При этом жидкость постепенно нагревается. Благодаря такому свойству подобные котлы еще называют ионными.
Размеры электродных котлов невелики. Их можно сделать из трубы сечением до 320 мм и длиной до 60 см. Однако электрокотел для отопления дома своими руками можно сделать и намного меньше.
Преимущества:
- небольшие размеры, благодаря которым ионный котел можно разместить даже в небольшой квартире;
- отсутствие, так называемого, «сухого хода», что гарантирует исправность котла, поскольку без жидкости внутри он не будет работать;
- устойчивость к перепадам напряжения;
- высокая скорость нагрева и остывания, что означает легкость регулировки;
- экономичность в потреблении электроэнергии по сравнению с приборами на ТЭНах.

Среди недостатков таких котлов можно назвать следующие моменты:
важным условием эффективного функционирования электродного котла является уровень теплопроводности и качество теплоносителя;
прибор необходимо надежно заземлить, поскольку велик риск поражения электрическим током;
важно исключить возможность попадания внутрь системы воздуха, иначе, электроды придут в негодность из-за коррозии.
Что понадобится?
Как было сказано выше, чтобы сварить отопительный агрегат, вы должны быть хорошим сварщиком. Работа на уровне любителя здесь не подойдет.
Инструменты
Что требуется для проведения этой работы. Из инструментов вам понадобятся:
- электросварочный аппарат;
- газовый резак;
- болгарка;
- молоток;
- рулетка;
- маркер или мел.
Материалы
Из материалов:
- труба бесшовная диаметром 425 мм;
- труба диаметром 100 мм;
- труба диаметром 25 мм;
- металлический лист толщиною 4 мм;
- два сгона диаметром 25 мм;
- небольшие петли;
- уголок 25 мм;
- арматура диаметром 8 мм.
Проект
Многие новички ищут чертежи котлов в Интернете или специальной технической литературе и уже по ним проводят работу. В принципе, это правильный путь.
1 Виды отопительных систем
Самостоятельно соорудить котёл можно практически любой сложности. Главное, правильно подобрать модель для определённого помещения. Для этого стоит разобраться во всех преимуществах и недостатках разных видов оборудования.
Котлы для отопления частных домов бывают таких видов:
- 1. Газовые. Этот вид оборудования лучше не рассматривать, так как для его установки понадобится согласование с контролирующими органами (газовой службой и т. п. ). При самостоятельном изготовлении вряд ли получится сделать котёл, который будет отвечать всем законодательным нормам.
- 2. Электрические. Эти модели довольно популярны. Объясняется это простотой в изготовлении, монтаже, эксплуатации. Но недостатком являются высокие цены на газ. Такое оборудование в основном устанавливается для дачи или гаража (в целях периодического отопления дома).
- 3. Жидкотопливные. Конструкция не является очень сложной для самостоятельного производства. Единственная сложность, с которой можно столкнуться, — настройка форсунков для подачи топлива. Это заставит задуматься, а стоит ли вообще выбирать такой вид оборудования для самостоятельного производства.
- 4. Твердотопливные. Они по праву считаются самыми лучшими на рынке. Связано это с достаточно большой производительностью, особенно если установить автоматическую регулировку температуры с помощью дополнительного оборудования.
Самые популярные — котлы длительного горения. Пиролизные и пеллетные из-за сложностей в установке, сборке, наличии отдельных дорогостоящих компонентов устанавливаются гораздо реже.
Пиролизный котел своими руками
Высокая стоимость на энергоносители, а так же на сам котел (самая простая модель от отечественного производителя не менее 1000$), не мешает ему набирать все большую и большую популярность у населения.
Итак, что нужно для того чтобы изготовить пиролизный котел своими руками?
Перед тем, как приступить к работам важно правильно все рассчитать, от толщины стенок котла до вида колосниковых решеток. Собрать всю необходимую информацию о чертежах, важных узлах конструкции, приобрести хотя бы минимальный опыт в сварке металлических изделий
Необходимый инструмент
- Сварочный аппарат, предпочтительно с постоянным током.
- Электрическая дрель;
- Болгарка с насадками для резки и шлифовки металла.
Необходимые материалы
- Для внутренних стенок котла листы металла толщиной 5 мм., для корпуса 3 мм. Общая площадь листов 8 м².;
- Труба Ø 57 мм., толщина 3 мм. длина 5-7 м.;
- Труба Ø 159 мм., толщина 4,5 мм., длина 50 см.;
- Шамотный кирпич, 10-12 шт. Труба Ø 32 мм., толщина 3 мм., длина 1 м.;
- Профильная труба 60х80 толщина 2 мм., длина 2 м.;
- Стольные полосы, ширина 20 мм., толщина 6 мм., длина 7 м.;
- Вентилятор для создания тяги;
- Датчик измерения температуры
Чертежи пиролизного котла
При желании конструкцию предложенных чертеже можно незначительно изменить, но делать это можно при наличии необходимых инженерных навыков.
После того, как вы закончили сбор пиролизный котла по схеме, предстоит его установить и приступить к испытанию. Если все сделано верно, температура должна быстро выходить на заданный режим.




































