Монтаж откатных ворот своими руками
Фундамент
Это, наверное, наиболее ответственный и важный элемент всей конструкции. Для начала фундамент требуется под закладную, куда будут фиксироваться опорные ролики. Некоторые компании и частные строители предлагают более экономный вариант основания, чем железобетон, а именно предлагают закрутить пару винтовых свай, куда затем наверх приваривается закладная и вот, по большому счету, практически все готово.
Затем рядом, в пучок свай прикручивается еще одна чуть наискосок (поскольку ровно рядом не установить много свай), под столб. Этот способ мы даже рассматривать не станем. Вероятно, он и подойдет под легкие и небольшие откатные ворота, к примеру, длиной 2,5 метра с легким каркасом, но ворота большей длинные будут «гулять» на этом основании.
Мы считаем, что в данном случае нет альтернативы железобетонному фундаменту, но и его можно выполнять по-разному. Так, к примеру, часто предлагается заливать только один фундамент — прямо под закладную, или два отдельных, один из них — под закладную, другой — под «принимающий» столб.
Такой вариант гораздо лучше, нежели само решение установки винтовых свай, но наличие двух отдельных фундаментов может закончиться плачевно, тем более в случаях, если эти фундаменты не находятся ниже уровня промерзания земли. Просто в результате морозного пучения эти отдельные фундаменты могут перемещаться вне зависимости друг от друга. В данном случае, даже при небольших смещениях касательно друг друга, все может завершиться тем, что ворота не будут попадать в уловители, которые находятся на приемном столбе, и вам нужно будет все время перенастраивать их.
Решение данной проблемы очень простое (но более дорогостоящее, нежели два раздельных фундамента) — оба столба обязаны соединяться одним фундаментом. В данном случае, даже при смещении основания, оба столба будут постоянно располагаться параллельно между собой, перемещаясь в одной связке.
Столбы

Касательно того, есть ли смысл ставить П-образные столбы или обычные — здесь нет общего мнения. Комплектующие могут устанавливаться без проблем на одинарные столбы. Но лучше П-образный вариант, этот вариант предпочтительней в том случае, когда в дальнейшем вы планируете поставить не только привод, но и набор автоматики для ворот, который в себя включает фотоэлементы. Для начала фотоэлементы намного удобней устанавливать именно на внутренние столбы, а не на столбы снаружи (с учетом антивандальных соображений). А также, внутри столбов внутри довольно удобно проложить скрытую проводку к сигнальной лампе и фотоэлементам.
Конструкция каркаса

К каркасу желательно сразу же приварить зубчатую рейку (или резьбовые цилиндры под крепеж зубчатой рейки). Крепежи зубчатой рейки (резьбовые цилиндры, 3 штуки на один метр рейки) стандартно находятся с ней в комплекте. Непременно проверяйте данный факт во время покупки! Для того чтобы потом без проблем установить автоматику. В противном случае, затем будет очень неудобно ее ровно приваривать к низу полотна.
Ее длина обязана быть больше не менее, чем на один метр длины проема. Этот один лишний метр (или даже больше) зубчатой рейки выходит на «противовес», чтобы постоянно находиться в зацепе с зубчатым колесом электродвигателя привода каркаса. Зубчатая рейка является универсальной и подойдет под 99% приводов (NICE, САМЕ, Алютех, Дорхан и так далее). Если приваривать резьбовые цилиндры для дальнейшего крепежа зубчатой рейки, то желательно их приварить предварительно к направляющей.
Также не забывайте, что если вы хотите в откатных воротах установить калитку (врезав калитку непосредственно в полотно ворот), то ее необходимо сделать в той части ворот, которая ближе всего находится к опорным роликам, на которых полотно удерживается. Если же вы хотите сделать калитку на дальнем конце полотна от роликов ворот или средней, то вы значительно можете нарушить баланс развесовки, силы, «увеличите рычаг», то есть, тех показателей, которые воздействуют на ролики.
Чертежи, схемы, эскизы и конструкция откатных ворот
Любая конструкция требует тщательных расчетов. Откатные ворота ответственны во многих вопросах – свободный ход, допуск транспорта на территорию – следовательно, любая модель до строительства тщательно планируется на бумаге.
Ширина проема ворот
Рассчитывается параметр исходя из габаритов транспорта – учитываются не только легковые автомобили, но и грузовые. Так, Газель составляет 2,5 м, а КАМАЗ – 2,9 м. Но при этом следует учитывать угол заезда – 45 градусов. Следовательно, между столбами, удерживающими конструкцию и зеркалами авто должно оставаться расстояние не менее 30 см. Если учитывать особенности грунта в период межсезонья – машина может отклониться, забуксовать или скользить, то этот параметр увеличивают до 50 см. Окончательно ширина составит 5 м.
Длина полотна
Это совсем не то что длина проема ворот. Этот параметр увеличивают как минимум на 40% от всей ширины. Это нужно для того чтобы скрыть щель между полотном забора и воротами.
Высота ворот
Она имеет значение, несмотря на то, что практической роли не играет. Рассуждаем с точки зрения эстетики – следует рассчитывать створку ворот таким образом, чтобы она лежала в одинаковой плоскости с забором, иначе перепада высот неизбежны и некрасивы.
Например, тело забора из профлиста составляет 2 м. Высота ворот рассчитывается за вычетом параметров всех комплектующих – направляющего рельса, кареток с колесиками, удерживающего каркаса и прочей фурнитуры
Важно – учитывается зазор между грунтом и краем ворот. Он должен составить не менее 10–15 см
Чертеж
Схематично конструкция ворот очень проста. Основой служит силовая платформа из армированного бетона. Далее, между столбами-стойками устраивается каркас с уловителями сварной рамы ворот. Ну а к последней крепится профлист. На полотне фиксируется ручка или ворота снабжаются электрическим приводом для приведения в действие из дома.
Размеры полотна
Одним из основных вопросов в проектировании ворот является определение ширины и других габаритов конструкции. Прежде всего, следует определить расстояние между столбами ворот, поскольку все дальнейшие расчёты зависят от этой величины. При этом учитывают:
- размеры автотранспорта, который будет въезжать на участок;
- угол въезда автомобилей;
- свободный зазор между габаритной шириной авто и опорами ворот, который должен составлять 0.3–0.5 м с каждой стороны.
Для легковых автомобилей среднего класса будет достаточно ворот шириной 2.5–3 м, тогда как грузовик или трактор требуют проёма размером не менее 3.5 метра.
Конструкция и размеры полотна сдвижных ворот с каркасом под металлопрофиль
Если же движение перпендикулярно линии ограждения затруднено и потребуется въезд под углом, то это значение необходимо увеличить ещё в 1.5 раза. А ведь надо учесть ещё и то, что машина по какой-либо причине (скользкая поверхность, неопытный водитель, неправильно закреплённый груз) может сместиться или наклониться в сторону. Поэтому оптимальной можно считать ширину створа ворот около 4.5 м — этого будет достаточно для любых ситуаций.
Рассчитывая ширину полотна, к размеру проёма прибавляют 20 см. Это необходимо сделать для того, чтобы при закрытых воротах со стороны опорных роликов двор не просматривался через щель. Если при изготовлении створки эта возможность не учитывалась, то из ситуации можно выйти, чуть сдвинув друг к другу столбы. При определении высоты ворот многие считают, что она должна быть такой же, как и у ограды, но обычно полотно делают немного меньшим. Это связано с тем, что нижний край ограждения устанавливают с минимальным зазором от уровня участка, в то время как створка земли не касается и устанавливается с зазором около 10 см.
Кроме того, на высоту полотна влияют размеры рамы его каркаса и ширина нижней направляющей. Чтобы в итоге ворота находились на одном уровне с забором, при проектировании необходимо учесть все эти нюансы и сделать точный расчёт.
Что понадобится для сооружения своими руками
После создания чертежа и замеров переходят к приобретению сырья и фурнитуры. Из инструментов не понадобится ничего специфического – необходимый инвентарь найдется дома у любого хозяина.
Выбор деталей для механизма отката
Существует несколько комплектов для изготовления откатной конструкции. Состав набора зависит от ширины проема и массы сооружения:
- До 400 кг и не шире 4 м;
- До 600 кг и не шире 6 м;
- От 600 кг и шире 6 м.
Каждый комплект отличается, поэтому его выбирают в зависимости от своих потребностей. Учитывают материал, из которого будут изготовлены створки. Ведь он непосредственно влияет на массу полотна.
Состав комплекта:
- Направляющая для установки снизу;
- Скоба с роликовым механизмом для поддерживания;
- Роликовые опоры;
- Подставка для поддержания роликовой платформы;
- Концевые ролики;
- Улавливатели снизу и сверху;
- Заглушки из пластика.
Жесткость направляющей сказывается на ее способности сохранять форму и не изменяться под воздействием внешних факторов. Для высокой прочности производитель использует сталь толщиной не меньше 3,6 мм
При выборе рекомендуется обращать внимание на этот показатель
Конструкция ворот держится на роликовых тележках. Поэтому их подшипники должны быть прочными и надежными.
В магазинах или на сайтах можно обнаружить консольные блоки с роликовым механизмом из пластика. Эти приспособления уменьшают слышимость шумов при перемещении полотна. Любые детали рано или поздно становятся непригодными, поэтому даже подшипники придется со временем заменить.

Перед установкой подшипники вскрывают и изучают уровень смазки. Количество смазывающего вещества сказывается на появлении посторонних звуков при перемещении полотна.
Скоба фиксирует полотно. Для обеспечения прочности и устойчивости скоба должна быть шире 4 мм. В качестве направляющих для нее больше всего подходит резиновый роликовый механизм. Они принимают небольшую нагрузку, но зато каркас конструкции не царапается при использовании. А от этого зависит внешний вид ворот.
Выбирая нижний улавливатель, рекомендуется помнить, что его функционирование возможно только в тандеме с роликовым механизмом. Проверьте, насколько свободно соединение концевика и фиксатора. Ролик, располагающийся на торце, перераспределяет нагрузки при закрытых створках.
От качественности стальной пластины зависит прочность фиксации закрытого полотна. Поэтому она должна быть толще 4 мм. Повысить надежность крепления можно с помощью сварочных работ.
Заглушки можно использовать любые. Основная их функция – предотвращение попадания снега.
Из материалов для отделки полотна можно использовать:
- Профлист – они легкие и просто крепятся метизами. Их подбирают по разным параметрам: толщине, расцветке, глубине/ширине волновых выступов. Поверхность покрыта защитным слоем, поэтому ограждение будет устойчивым по отношению к ржавчине;
- Металлические листы – выбирают исходя из размеров и толщины. Материал часто берут для изготовления кованых конструкций;
- Поликарбонат – позволит создать легкие ворота;
- Штакетник – поверхность покрывают антисептиком, лаком или красящими растворами. Такое изделие прослужит длительное время и сохранит первозданный вид;
- Ковка – используют отдельно или комбинируют с поликарбонатом, штакетником и металлом. Кованые детали продаются уже готовые. Поэтому, умея работать со сварочным аппаратом, можно изготовить кованые ворота самостоятельно;
- Филенка – для ее изготовления стальные листы штампуют. Производители выпускают разные размеры. Фиксируют элементы сварочным аппаратом или метизами.

Какой инструмент и материалы понадобятся
В процессе могут понадобиться следующие инструменты:
- Лопата, лом, трамбовка;
- Тары для цемента, песка, щебенки и готового раствора;
- Сварочное оборудование;
- Болгарка;
- Молотки;
- Шуруповерт;
- Ключи;
- Рулетка;
- Карандаш;
- Кисти.
Непосредственно для сооружения ворот понадобятся профильные трубы, швеллеры, листы металла, арматура.
Заблаговременно следует подумать о внешнем виде ворот. Необходимо приобрести краску и грунтовые смеси.

Проблемы при работе привода
Обратите внимание, что у некоторых приводов Дорхан (Doorhan), отверстие для заливки масла, может оказаться закрытым герметичной пробкой. Это необходимо, чтобы оно не выливалось при транспортировке
Перед первым пуском на этой пробке нужно открутить боковой винтик. Иначе при перегреве движка, масло начнет выдавливать через все прокладки и сальники
Это необходимо, чтобы оно не выливалось при транспортировке. Перед первым пуском на этой пробке нужно открутить боковой винтик. Иначе при перегреве движка, масло начнет выдавливать через все прокладки и сальники.
Если в процессе длительной эксплуатации автоматика начинает глючить, попробуйте просто отключить-включить автомат питания в щитке.
Когда привод совсем перестал работать, проверьте предохранитель. Он находится внутри.
На некоторых моделях эл.приводов, при ухудшении срабатывания от пульта (уменьшение радиуса действия до нескольких метров), вскройте кожух и найдите там проволочную антенну. Попробуйте ее немного зачистить или изменить положение. Зачастую помогает.
Для проверки работоспособности всей системы, необходимо осуществить минимум пять циклов открытия-закрытия ворот. Хорошая автоматика откатных ворот рассчитана на 20-25 тысяч таких циклов, что соответствует примерно 15 годам безотказной работы.
https://youtube.com/watch?v=1ZXNFddyOF0%3F
Источники – cable.ru, Кабель.РФ
Материалы для строительства
Основная составляющая ворот – металлическое полотно. Количество его зависит от высоты забора и размера въезда. Для строительства понадобятся следующие комплектующие:
- Рельс направляющий. Представляет собой железную балку толщиной от 3 мм и длиной от шести метров.
- Заглушки и ограничители, для защиты от грязи, мусора, снега и т.д.
- Каретки с роликами – благодаря им металлическое полотно будет плавно перемещаться по рельсу.
- Концевые ролики с ловушками необходимы для предотвращения выпадения полотна и будут ограничивать его скольжение.

Количество комплектующих строго индивидуально. Рассчитывать его, как и количество полотна, придется самостоятельно, исходя из размера ваших ворот.
Примерно сориентироваться в том, сколько комплектующих понадобится, поможет следующий алгоритм:
- Длина полотна не превышает 5 метров – закупается фурнитура, способная выдержать до 600 кг нагрузки.
- Длина полотна не превышает 6 метров – закупается фурнитура, способная выдержать до 700 кг, и т.д.
Помимо комплектации необходимо подготовить инструменты для строительства, и все материалы для фундамента.
Какой выбрать

Стоит подбирать привод, опираясь, главным образом, на вес створки. Предельный вес полотна указывается для каждой модели, но нет смысла полагаться исключительно на него, так как присутствует ряд переменных в конструкции самих ворот.
Как пример, для консольных ворот важна длина противовеса, которая, в норме, варьируется в пределах 2/5-1/2 от длины проёма. Если же этот показатель ниже, то в системе врат увеличивается трение и, соответственно, для приведения полотна в движение, требуется большее усилие. Исходя из сказанного, стоит подбирать привод с большим запасом мощности.
Следующий ограничительный параметр, это допустимая длина створки. Часть моделей ограничиваются для применения с конструкциями, где размеры полотна чётко регламентированы.
Важным моментом является применённая фурнитура для ворот.
Качество деталей, наравне с качеством сборки и отладки всей конструкции влияют на величину усилия, которое требуется приложить, чтобы сместить створку. При использовании фурнитуры низкого качества, некачественной сборке и плохой отладке системы ворот, итог сравнимый с таковым при уменьшении длины противовеса. Выход из ситуации такой же – применение привода с большим запасом мощности.
В холодное время года, выпадающие осадки, обледенение и так далее усложняют «старт» полотна, это стоит учитывать.
Подготовка к постройке: чертежи, эскизы, размеры
Изображать откатные ворота на бумаге, указывая размеры, следует после проведения расчётов. Для этого нужно выполнить следующие задачи:
- определить ширину будущих ворот, воспользовавшись формулой L=A+I+(a+b+c+d), где L обозначает ширину конструкции, А — ширину проезда, I — расстояние между каретками, размеры a, b, c, d — технологические отступы;
- решить, какими ворота будут по высоте;
- узнать, каким должен быть противовес, уравновешивающий створку при движении, учитывая, что минимально допустимая длина груза — 40% от ширины проёма;
- рассчитать вес полотна конструкции, на который влияет используемый материал (например, квадратный метр стального листа толщиной 2 мм весит 17 кг);
- исходя из веса створки ворот, установить размеры комплектующих и несущей балки, допустим, для конструкции в 300 кг нужна балка толщиной порядка 4 мм с рёбрами 9×5 см;
- узнать, насколько прочными должны быть комплектующие, то есть учесть частоту использования ворот и силу ветра.
Перед выбором роликового механизма стоит ознакомиться с некоторыми советами. Для откатных ворот из профлиста, устанавливаемых в проём 4 м, лучше всего взять усиленные роликовые опоры до 350 кг. Если планируется ставить ворота в проём 7 м и обшивать конструкцию деревом или коваными элементами, то целесообразнее приобретать комплекты до 800 кг.
Роликовый механиз должен выдерживать створки, которые имеют немалый вес
Составление чертежей
Проведя расчёты, можно приступать к составлению чертежей. В схемах требуется указывать основные размеры откатных ворот, то есть высоту и ширину конструкции, длину проёма и направляющей балки. Чертежи рекомендуется дополнять схемой сварки рамы.
В чертеже нужно указывать размеры конструкции
Особенности проектирования конструкции
Ворота на роликах для нормальной работы должны иметь следующие вспомогательные элементы:
- Функции демпфера и заглушки выполняет опорный ролик, который ставится на направляющей в торце спереди.
- 2 улавливателя — нижний и верхний, которые удерживают ворота в закрытом состоянии. Улавливатели в форме П-образных кронштейнов размещаются на противоположной опоре.
- Для дополнительного удержания полотна к основному столбу по верхнему краю крепится роликовый ограничитель — скоба или шина.
Полотно конструкции двигается по 2 роликовым кареткам, на них ложится основная нагрузка. Поэтому фундамент с закладным швеллером делается массивным.
Размеры полотна
Основной параметр для расчета всей системы — требуемое расстояние для проезда транспорта между опорами.
Консольные ворота для частных домов чаще всего ставят шириной 4-5,5 м. Вместе с противовесом, который принято делать в половину проема, длина шторки может быть 6-8,3 м.
Противовес, вылет за опору, выполняют в виде прямоугольника или более экономичного варианта — треугольника. Чем тяжелее противовес, тем меньше нагрузка на ролики.
Высота полотна — больше роста человека, т.е. около 2 м.
Чертежи и схемы
Консольные блоки служат основой для передвижения направляющей. За боковые габариты, чтобы оставить проезд беспрепятственным, выносят опорные ролики.
Привод автоматики устанавливается на основание вместе с каретками.
Для изготовления конструкции делают монтажную схему откатных ворот, в которой отображают:
- столбы — приемный и опорный;
- каркас ворот;
- заполнение — сетка, профлист;
- балка несущая;
- балка с роликами опорная;
- нижняя ловушка;
- блок управления и привод;
- консольная часть.
Сложные узлы выносят в отдельные эскизы с проработкой всех деталей.

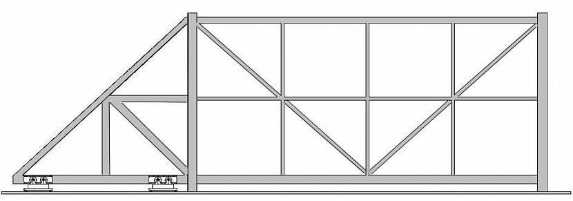
Изготовление несущей рамы откатных ворот
Переходим к основному разделу статьи – как самому сделать откатные ворота для дачи, то есть будем разбираться непосредственно с процессом сборки. В первую очередь надо изготовить раму. Для этого используется один из видов металлопрофиля. Сегодня мастера свое предпочтение отдают профильной трубе. С ней проще работать, плюс, этот материал обладает невысокой массой, но высокой несущей способностью.
Рама собирается из двух каркасов, вставленных друг в друга. Внешний будет выполнять функции несущей конструкции, внутренний используется для обшивки и увеличения жесткости общего изделия. Поэтому для первого лучше использовать трубу сечением 60х30 мм, для второго 40х20 мм.

Вариант схемы рамы откатных ворот
Сначала собирается внешний каркас. Перед тем как сварить откатные ворота, имеется в виду каркасную конструкцию, необходимо определиться с размерами. С длиной все понятно, об это было написано выше. Что касается высоты, то оптимальный размерный диапазон – 1,8-2,0 м.
Поэтому профильная труба подрезается под эти размеры с учетом требуемого их количества
Обратите внимание, что нижняя направляющая должна иметь длину – ширина проема, плюс 40%. Верхняя должна равнять ширине проема
Отрезаются и две вертикальные стойки, а также наклонный элемент, который сформирует хвостовик.
Теперь потребуется ровная площадка, где все отрезанные трубы укладываются по месту своего расположения и привариваются друг к другу электросваркой.
Если спросить у мастера, как самому сделать раздвижные ворота, то он ваше внимание обратит на следующие требования к раме:
все углы конструкции должны быть прямыми;
само воротное полотно должно быть в одной плоскости без перекосов и искривлений;
швы делаются сплошными.

Рама из внешнего и внутреннего каркасов
Внешняя рама готова, можно вваривать внутренний каркас из трубы 40х20 мм. Он усилит конструкцию откатных ворот, увеличит ее жесткость и станет основой для отделки
Здесь есть они момент, который надо принять во внимание
Если для отделки выбран профнастил, то промежуточные вертикальные элементы должны устанавливаться через промежутки, равные ширине профилированного листа. То есть стыковаться панели профнастила должны на промежуточных стойках. Если один из листов полностью не помещается, то его болгаркой подрезают под требуемый размер.
Если ворота будут обшиваться с одной стороны, то внутренний каркас надо сместить внутрь, то есть в сторону двора. Величина смещения – толщина отделочного материала, к примеру, высота волны профнастила, или толщина досок.
Размеры элементов внутреннего каркаса определяются методом замера рулеткой внутренних плоскостей каркаса внешнего. Ничего рассчитывать не надо. Просто отмерили, перенесли величину на профильную трубу 40х20 мм, отрезали болгаркой. Установили на внутреннюю плоскость наружного каркаса и приварили к нему точечным швом. Конечный результат хорошо виден на фото ниже.

Каркас откатных ворот в сборе
Итак, рама ворот готова, остается приварить к нижнему несущему элементу, по всей его длине, направляющую, которая входит в комплектацию фурнитуры для откатных ворот. Рекомендуется это делать, используя струбцины, чтобы направляющий элемент не повело во время крепления.

Рама откатных ворот приварена к направляющей
Следующие операции:
зачистка швов;
грунтовка рамы;
ее покраска.
И последнее – монтаж отделочного материала. В независимости от того, что было выбрано, элементы обшивки крепят к внутреннему каркасу саморезами по металлу. У них на конце не винт, а бур, с помощью которого крепежное изделие легко может само просверлить сталь толщиною до 3 мм. А у профильной трубы как раз такая максимальная толщина металла. При этом крепежи должны вкручиваться перпендикулярно к монтажной поверхности.
В принципе, ответ на вопрос, как сделать откатные ворота своими руками, дан. Чертежи, которые есть в свободном доступе в интернете, могут и не пригодиться. Слишком проста их конструкция.
Установка своими руками
Если вы решили самостоятельно установить откатные ворота, то вам понадобятся следующие инструменты:
- Лопата;
- Сварочный аппарат;
- Лом;
- Рулетка;




- Уровень;
- Молоток;
- Дрель (запаситесь сверлами по металлу);
- Болгарка.




Полотно раздвижных ворот нужно устанавливать вдоль забора. Заранее позаботьтесь о свободном пространстве для откатки створки. Для этого рекомендуется приготовить подробный чертеж будущей конструкции. Купите все необходимые материалы в специализированных магазинах и приступайте к монтажным работам.

Для начала изготовьте и установите столбы. Можно использовать простые бетонные варианты, прочную металлическую трубу или деревянные бруски. Специалисты рекомендуют бетонировать данные детали, чтобы они были более устойчивыми и надежными.

Теперь можно переходить к укладке фундамента. Его следует разместить вдоль забора и качественно забетонировать. Для этого необходимо подготовить траншею с глубиной около 1 м и шириной не меньше 0,5 м.


Далее следует заняться изготовлением металлической части откатных ворот. Для этого пригодится металлический швеллер (его ширина должна составлять 14-15 см, а длина должна равняться длине фундамента). После этого к швеллеру нужно приварить небольшие ножки из металла диаметром 13 мм. Затем металлическую часть необходимо уложить в выкопанную траншею (ножками вниз) и забетонировать.

Теперь нужно подождать неделю до того момента, пока бетон полностью не высохнет. Это время не стоит терять зря – лучше заняться изготовлением откатных ворот.
Еще одним важным этапом является сварка и покраска щита. Сначала при помощи болгарки необходимо удалить с металлических оснований следы коррозии (если таковые имеются), а также заметные масляные следы. После этого материал нужно обезжирить (для этого подойдет бензин). Далее следует нанести специальную грунтовку с антикоррозийными свойствами и оставить конструкцию до полного высыхания.

После нанесения и высыхания грунтовки можно переходить к процессу варки рамы. Для этого пригодится рельс с длиной в 6 м. Его нужно положить так, чтобы разрез смотрел вниз. Затем к нему следует приварить профильную трубу. Ее размер должен составлять 60х30х2 мм. Далее на эту трубу устанавливаются вертикальные стойки и так же привариваются. Эти детали должны иметь аналогичный размер.

Не забудьте о последнем, но не менее важном штрихе – варите внутреннюю трубу с размером 40х20х2. В завершении необходимо обработать и зашлифовать получившиеся швы, чтобы конструкция выглядела аккуратно, а потом нанести на готовое полотно еще один слой грунтовки

Щит можно красить при помощи обычной кисти, но лучше пользоваться специальным краскопультом. Тогда весь процесс займет меньше времени, а результат вас обязательно порадует. После того, как краска полностью высохнет, следует обшить основу деревом, пластиковым листом или профнастилом.

Теперь можно переходить к установке механизма ворот. Роликовую систему нужно установить на швеллер. Закрепление этой детали происходит с помощью боковой части. Затем роликовую систему укладывают на специальные тележки. После этого полотно следует установить вдоль забора и приварить. Что касается улавливателей и подвижных роликов, то их следует закрепить на несущих столбах. Для фиксации этих деталей можно использовать сварку, дюбели или хомуты.


Управление воротами может происходить с помощью автоматической системы. Ее вполне можно собрать своими руками. Более того, такая работа позволит сэкономить деньги, поскольку собственноручный сбор автоматики обойдется намного дешевле, чем покупка готовой системы. Но не думайте, что изготовить свою автоматику будет просто. Для этого понадобится немало усилий и свободного времени.

Сборка каркаса створки
Чтобы упростить работу, следует подготовить схему каркаса заранее. Это облегчит сборку ворот.
Каркас ворот собирается на ровной, просторной поверхности. Сваривается каркас, начиная с нижних элементов, в шахматном порядке для исключения перегрева металлических труб. После сваривания основного несущего каркаса к нему приваривают вертикальные элементы, верхнюю поперечную и откосную трубы. Для монтажа профнастила к основанию конструкции привариваются заполняющие элементы – благодаря им полотно будет более жестким и устойчивым. После остывания готовую конструкцию необходимо покрыть алкидной краской (из пульверизатора).
После высыхания можно приступать к обшиванию ворот профнастилом. Если речь идет о художественной ковке или о стальных листах, то их приваривают на этапе сборки каркаса, и потом все вместе окрашивают.
Подключение электрооборудования и автоматики
Для того, чтобы ворота не приходилось открывать и закрывать вручную, ставим электропривод с дистанционным управлением.
Перед установкой такого привода нужно проложить питающий электрокабель. Сечение жил провода рекомендуем брать с запасом прочности. Глубина траншеи под кабель составляет 50 см. На дне траншеи делаем песчанную подсыпку толщиной в 10 см и уплотняем ее. Кабель лучше прокладывать в футляре, желательно избегать крутых углов.
Установка электрокабеля в футляре позволит защитить кабель, и в дальнейшем производить ремонт без раскопки в случае его повреждения.
После прокладки проводов, обязательно составьте схему с привязками трассировки к зданию или другим постоянным сооружениям.
С помощью проложенного кабеля можно запитать не только привод и сенсоры автоматики, но и подключить камеру слежения.
Теперь устанавливаем электропривод и подключаем датчики.
Электропривод для откатных ворот
Финальным действием будет подключение электричества с итоговой наладкой оборудования.
Как вы уже поняли, установка откатных ворот процесс довольно-таки сложный и, по возможности, его лучше доверить специалистам. Но если вы решили все сделать своими руками, то наша пошаговая инструкция вам обязательно пригодится.
Какими бы советами Вы дополнили наш обзор?
Каркас рамы
Размечаем трубу. Для этого лучше заранее сделать схему разметки, чтобы сократить расход материала. Нарезаем болгаркой заготовки согласно схеме.
Далее, если вы не занимаетесь сваркой, то доверьте следующий этап работ профессионалу, чтобы он сварил каркас будущих ворот быстро и качественно. Не забудьте приварить к нижней части направляющую П-образную рельсу.
После окончания сварочных работ зачистите метал с помощью специальной щетки до металлического блеска. А еще лучше и быстрее использовать для очистки шлифовальную машинку с насадками.
Следующее, что нужно сделать — это обезжирить поверхность с помощью растворителя и нанести два слоя грунтовки. После ее высыхания можно приступать к покраске.
Когда краска высохнет, обшиваем каркас профлистом. Их крепление нужно осуществлять саморезами по металлу или заклепками.
Как изготавливаются рельсовые откатные ворота своими руками: порядок действий
Подобная конструкция получила достаточно большое распространение благодаря своей простоте и доступности. Система предполагает наличие специального рельса, закреплённого на поверхности земли, и роликов, прикреплённых к нижней части ворот. Во время открытия створка смещается по рельсу на требуемое расстояние. Предлагаем разобраться, каким образом монтируется подобная конструкция.
Ролики движутся по специальному наземному рельсу
Необходимые для работы инструменты и материалы
Для монтажа следует иметь в наличии:
- сварочный аппарат;
- пилу;
- болгарку;
- шуруповёрт;
- ручной слесарный инструмент.
Для изготовления сдвижной рельсовой конструкции потребуется профильная труба различного сечения, материал для полотна, крепёжные элементы, фурнитура, бетонный раствор.
Количество материала, требуемое для откатной системы, зависит от дизайна и размера ворот
Подготовка основания для двигательного механизма
Основание формируется с внутренней стороны участка вдоль забора. Для фундамента готовится котлован шириной 0,5 м и глубиной 1,5-2 м. Последний параметр зависит от глубины промерзания грунта. Длина траншеи для откатной системы равняет удвоенной ширине ворот.
На дне траншеи формируется подушка из щебня либо смеси, состоящей из гравия и песка. Выполняется армирование. Для изготовления каркаса преимущественно используется арматура диаметром 10 мм. Производится заливка бетонной смеси, состоящей из одной части цемента, двух песка и четырёх щебня. Заливку производят постепенно, не допуская изменения положения установленных элементов.
Заливка бетонного раствора для бетонного основания выполняется постепенно
Установка опорных столбов и монтаж направляющих
После высыхания бетонного раствора приступают к монтажу направляющих и установке опорных столбов. Рельс должен располагаться горизонтально и параллельно ограждению. Чтобы обеспечить требуемое пространственное положение элемента, вдоль бетонного основания натягиваем нить. К бетонному основанию прикручиваем направляющую для откатной конструкции.
Рельс следует надёжно зафиксировать
Установку опорных столбов выполняем в следующей последовательности:
| Иллюстрация | Описание действия |
![]() | Выполняем разметку, определяя диаметр и местоположением под опорные элементы. Они должно располагаться достаточно близко к сформированному основанию. |
![]() | Производим выемку земли на нужную глубину с учётом уровня промерзания грунта и эксплуатационной нагрузки. Установленные опорные столбы должны выдержать откатные ворота с учётом ветровой нагрузки. |
![]() | Монтируем опорные столбы. С помощью уровня тщательно контролируем их пространственно положение во всех плоскостях. Для фиксации опор используем бетонный раствор. |
Изготовление полотна откатных ворот
Если нет готового полотна откатных ворот, руководствуясь чертежом, изготавливаем его своими руками. Работы следует выполнять в горизонтальной плоскости, разложив элементы конструкции на ровной поверхности. Сначала свариваем каркас, а затем к нему крепим облицовочный материал.
Положение каждого элемента должно быть тщательно выверено
Установка конструкции и фурнитуры
Изготовив ворота, приступаем к их установке. Для этого:
| Иллюстрация | Описание действия |
![]() | К нижней части полотна крепим ролик. Способ крепления зависит от конструктивных особенностей выбранной фурнитуры. |
![]() | Крепим ограничители, которые не позволят створке сместиться дальше столбов, и элементы запорной системы. Замок должен иметь подходящее конструктивное исполнение. Если система двустворчатая, можно к каждой створки приварить уши для навесного замка. Полотно устанавливаем на направляющий рельс и проверяем работоспособность собранной конструкции. |
Элементы и комплектующие ворот
Элементы и комплектующие
По сути, имея все необходимое для выполнения работ, вам будет нетрудно установить ворота. Особо глубоких знаний в строительстве вам не потребуется, достаточно базовых знаний, материала и следования рекомендациям специалистов.
Для работ вам понадобятся расходные материалы, но основная и важная часть элементов – фурнитура, отвечающая за движение ворот. Она состоит из:
- роликовой тележки или каретки (2 шт.);
- нижнего и верхнего уловителя;
- направляющей П-образной балки;
- зубчатой рейки;
- съемного концевого ролика;
- верхнего фиксатора с роликами;
- пластины для фиксации роликовой тележки.
Обращайте внимание на качество
При выборе качественной фурнитуры обращайте внимание на проверенных производителей, учитывая цену и качество изделий. Также можно обратиться за помощью к профессионалам, которые помогут выбрать наилучший вариант
Гораздо проще купить уже готовый комплект ворот со всеми необходимыми элементами, который нужно только собрать и установить на место. В нем есть специальная инструкция по монтажу, благодаря которой вы легко сможете сделать все необходимые работы.










































