Общие принципы построения
Для постройки панельного, деревянного дома и любых других зданий важна разработка проекта. В типовом проекте немало документов, но будущих хозяев обычно интересуют чертежи многоэтажных и одноэтажных жилых зданий в разрезах, где можно увидеть результат процесса постройки.
В чертежи обычно входят фасады и разрезы:
- Фасад представляет собой изображение внешнего вида дома. В основном в таком чертеже присутствуют несущие элементы и детали отделки, воссоздающие точный вид здания;
- Разрез здания – графическое изображение коттеджа с рассечением по плану секущими плоскостями. На нем зафиксированы объекты, сквозь которые проходит секущая площадь и располагающиеся за ней.
Чертеж фасада позволяет представить, как дом будет смотреться внешне, здание в разрезе показывает внутреннее устройство комнат.
В проектных документах должно быть минимум два чертежа. В одном представлен поперечный разрез, в другом – продольный разрез. При сложной конфигурации постройки документов больше.

При создании чертежей высотных построек, частных домов, производственных и административных зданий требуется обозначить разрезы. Для этого применяются тонкие вертикальные и горизонтальные линии. Чаще всего их делают по стенам лестничной клетки. Алгоритм вычерчивания разреза:
- Вначале для главных несущих панелей и колонн (если они есть) нанести и указать вертикальные координационные оси;
- После сделать горизонтальные линии уровней, находящиеся перпендикулярно с координационными осями. Это линии тротуара или земли, примерного верха карниза, перекрытия чердака, полов на каждом этаже;
- Затем тонкими линями нанести контуры внутренних и наружных стен, перегородок. Зафиксировать высоту конька крыши, перекрытий между этажами и чердаком. Нужно нарисовать карниз стены, скат крыши, выносы цокольного этажа;
- Наметить дверные и оконные проемы в перегородках, наружных и внутренних стенах, остальные элементы постройки;
- Далее наносят необходимые размеры и отметки. Нужно начертить размерные и выносные линии и знаки, которые позволят сделать простановку высотных отметок, провести маркировку координационной оси;
- Сделать завершающее обведение сечей, поставить высотные отметки и разрезы, записать разъясняющие слова, названия, убрать ненужные линии.
Вам будет интересно: Особенности печати чертежей
Перечень обязательных архитектурных чертежей дома с размерами
Архитектурно-строительные чертежи предполагают указание точных габаритов, содержат характеристики общих параметров дома, отдельных сооружений, конструкций и их частей. Здесь включены детальные планы каждого из этажей, предусматривающие размещение жилых комнат и хозяйственных помещений. Указывается площадь всех элементов, высота потолков, месторасположение проемов для окон и дверей.
Например, чертежи для двухэтажного дома с мансардой в архитектурно-строительном разделе располагаются в таком порядке:
- план подвала;
- план первого этажа;
- план второго этажа;
- план мансарды.
Также в этом разделе должен быть размещен план стропильной конструкции крыши. Чтобы начертить чертеж, необходимо изобразить полную систему элементов конструкции перекрытий в сечении. В таблице, которая прилагается к чертежу, указываются спецификация частей стропильной конструкции крыши, полный список ассортимента материалов и их количество. План кровли составляется отдельно, в нем указаны форма, габариты, скатность крыши и углы наклонов, а также месторасположение вентиляционных выходов, слуховых окон, люкарн, окон мансарды.

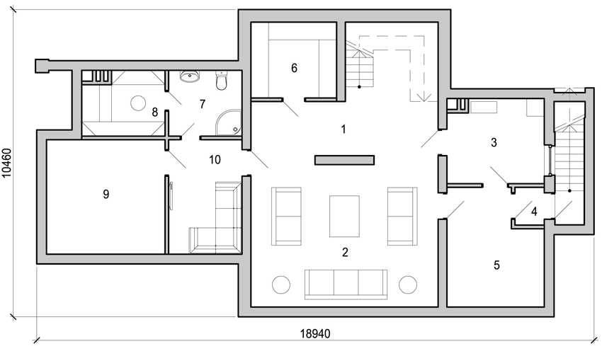
План подвального этажа, где 1 – холл, 2 – комната отдыха, 3 – топочно-постирочная, 4 – тамбур, 5 – кладовая, 6 – кладовая, 7 – санузел, 8 – сауна, 9 – спортзал, 10 – терраса.
Чертежи частных домов в обязательном порядке включают несколько разрезов с указанием всех элементов строения вдоль или поперек. Их выполняют последовательно от крыши к фундаменту. Таким образом, в сечении видны размеры и расположение пола, всех перекрытий и крыши. Подобных разрезов, сделанных с разных сторон, должно быть пять.
Деревянное зодчество
Если дом деревянный, лучшее украшение для него – дерево. Русский народный стиль близок вашей душе? Закажите резные наличники. Ставни придают шарм и решаются в разной стилистике – если их сделать глухими или в виде жалюзи. Новые элементы можно выделить другой тонировкой или покрасить – например, в голубой или бирюзовый цвет, так как этот цвет любим в русской деревне.
Совершенно другой вид приобретает дом, если добавить не резных, а строгих, прямых элементов – к примеру, балки для ограждений крыльца и балконов. Они могут придать дому японский или скандинавский колорит. Крашеные облицовочные панели, «разбавленные» тонированными деревянными рейками, создадут стиль фахверк. Настоящая фахверковая конструкция предполагает открытые балки – рейки только имитируют стиль.
Чертежи фасадов – определение и особенности
Чертеж фасада – это графическое изображение внешнего вида проектируемого здания с разных сторон, так называемый вид сбоку. Он обязательно содержит высотные отметки и другие размеры, которые определяют положение конструктивных элементов дома, видимых снаружи. В отличие от цветных изображений фасада, чертеж выполняется на плоскости и не содержит перспективных искажения, цвета или теней.
Для получения визуального представления о проектируемом доме дополнительно разрабатываются цветные фасады. Их главная цель – дать заказчику представление, как выглядит построенное здание. Нередко под общим термином «фасады» обозначаются обе описанные выше части проектной документации. Главные различия между ними таковы:
Чертеж фасада дома относится к рабочей документации и необходим для создания кладочных чертежей и разработки конструктивно-технической и архитектурной части проекта;
Фасады в цвете позволяют получить представление о внешнем облике и эстетических параметрах будущего здания, способах и материалах отделки, а также его архитектурных особенностях.
![]() | |
Чертежи фасадов домов и коттеджей выполняются в соответствии с проектными стандартами и правилами в едином стиле с другими частями документации. Это необходимо для того, чтобы облегчить чтение чертежей и сопоставление их между собой.
Единых нормативов и стандартов для разработки фасадов в цвете нет, однако, в большинстве случаев проектировщики и архитекторы стараются унифицировать всю разрабатываемую проектную документацию. Поэтому выполняются два варианта цветных фасадов – крупный для более простой визуализации и обычный в масштабе, аналогичном техническим чертежам.
Общие положения
Ответ на вопрос, как чертить фасад здания, мы начнем с перечисления общих для всех строительных чертежей и схем требований.
Терминология
- Все строительные чертежи получаются проектированием определенного вида здания на плоскость.
- Собственно чертеж фасада дома — это его фронтальная проекция на плоскость, расположенную параллельно фасаду
. - Проекция среза здания в продольной или поперечной плоскости — это, соответственно, продольный или поперечный разрез.
- Если на бумагу переносится горизонтальный срез здания, его принято называть планом. В зависимости от того, на каком уровне срез выполнен — это может быть план подвала, первого этажа и так далее.
- Вид сверху на участок, включающий здание или группу зданий и сооружений, принято называть генеральным планом.
- Наконец, независимо от того, какой объект изображен — подвал детского сада, фасад промышленного здания, фасад коттеджа, или туалет на дачном участке — все эти изображения имеют общее название: архитектурно-строительные чертежи.
Несмотря на распространение электронных носителей, чертежи обязательно распечатываются на бумаге.
Нормативные документы
Разрезы, планы и чертежи фасадов зданий должны быть выполнены в общей системе ЕСКД (единой системе конструкторской документации). Ее стандарты определяются ГОСТ 2.301-68 — ГОСТ 2.307-68.
Что именно регламентируется?
Форматы листов всех чертежей.
- Масштабный ряд изображений.
- Толщину линий.
- Наименование элементов изображения.
- Чертежные шрифты.
- Методы изображения на чертежах различных предметов.
- Графические обозначения различных материалов.
Масштабы при составлении генеральных планов объектов могут применяться следующие:
- 1:200;
- 1:5000;
- 1:10000;
- 1:20000;
- 1:25000;
- 1:50000.
В чертежах фасадов и планов используются, разумеется, и более крупные масштабы.
Масштаб 1:1 может быть применен при переносе на бумагу карнизов сложной формы и других мелких элементов. Впрочем, это скорее исключение. Масштабы увеличения в архитектурно-строительном черчении не используются.
Правила выполнения чертежей
Чтобы правильно выполнить своими руками чертежи фасадов домов, планы этажей и прочие архитектурно-строительные схемы, нужно придерживаться довольно жестких правил.
- Толщина основной линии должна быть одинаковой для всех деталей чертежа, выполняемых в одинаковом масштабе. Исключение — чертежи разрезов: видимые линии контуров могут быть вычерчены тонкой линией.
- Наименования, заголовки и обозначения в поле чертежа могут писаться без наклона. А вот размеры и прочие надписи на стрелках пишутся наклонными, с углом относительно основания строки около 75 градусов.
- Общее количество размеров на чертеже должно быть, как и подсказывает здравый смысл, достаточным для проведения строительных работ. При этом допускается дублирование одного и того же размера на разных элементах изображения.
- Размеры проставляются в миллиметрах без обозначения единиц измерения. Однако уровень над грунтом проставляется в метрах с точностью до третьего знака после запятой.
Традиционно все размеры на чертежах указываются в миллиметрах. Правило не абсолютно; но другие единицы измерения должны быть указаны в примечаниях.
Некоторые советы по планировке дома
Создавая чертеж дома, следует учесть следующие рекомендации от специалистов:
- Количество помещений, учитывая их функциональное назначение и расположение относительно друг друга. Здесь следует предусмотреть не только основные комнаты, отведенные для каждого члена семьи и функциональные помещения (ванная, туалет, кухня), но также и комнату, где будет собираться вся семья (зал, гостиная), прихожую, веранду, кладовую и т. д.
- Увлечения каждого из членов семьи также следует учитывать при планировке дома. К примеру, в некоторых домах имеется свой бассейн, тренажерный зал, отдельная библиотека, сауна, мастерская и т. д.
- Личные комнаты лучше делать небольшими и уютными, а зал, где собирается вся семья, напротив, должен быть просторным.
- Детскую следует расположить рядом с родительской спальней.
https://youtube.com/watch?v=TeVscXQLQDo
Как сделать хороший дизайн-проект? Подготовка 3D-модели и секреты грамотного проектирования. Видео от Алексея Земскова
- Для компактного размещения водопровода и канализационной системы желательно располагать кухню, бойлер и занузел в одну линию.
- Для эффективного сохранения тепла в зимнее время желательно наличие в доме утепленной веранды или тамбура.
- Осуществляя расчет площади здания, необходимо учесть, что на одного взрослого человека должно приходиться минимум 8 м2 жилого пространства.
План дома с мансардой и гаражом
Заключение
Многие люди интересуются тем, как сделать план или чертёж самостоятельно, однако далеко не все понимают, насколько ответственным является этап проектирования. Выше были рассмотрены основные нюансы создания полного проекта дома. Здесь следует понимать, что проектирование дома требует комплексного подхода и внимания к целому ряду особенностей.
Оцените материал
Рейтинг: 4 из 5 Голосов: Просмотров: 114406
Требования
Любые проектные документы, в том числе и представляющие фасад дома, выполняются с учетом требований, сформулированных в нормативных документах.

Нормируется:
- размеры листов, на которых выполняются чертежи;
- масштаб;
- размер и вид шрифтов;
- вид наносимых линий;
- методы, применяемые для обозначения различных материалов;
- графические значки, при помощи которых изображаются отдельные детали здания.
Масштабы
Вряд ли кому-то придет в голову изображать на бумаге фасад даже небольшого дома в натуральную величину. Как правило, чертеж фасада жилых домов изображается в масштабе 1 : 100. При проектировании промышленных зданий могут использоваться масштабы 1 : 200 или 1 : 400.
Для изображения отдельных элементов, которые могут украшать фасад, может применять масштаб 1 : 50, в редких случаях отдельные элементы изображают в натуральную величину.

Сопутствующая документация к проекту и строительным чертежам
Строительный проект – не только набор эскизов, чертежей и таблиц, здесь содержится подробная информация о каждом из этапов строительства и об отдельных участках работы. Это позволяет в итоге получить комплексную капитальную постройку.
Каждый проект, кроме уже перечисленных чертежей, в обязательном порядке включает такие документы:
- архитектурно-конструкционную характеристику;
- описание функциональности здания;
- технические и экономические данные, такие как площадь, кубатура, высота;
- описание инженерных решений;
- виды, перечень и количество строительных и отделочных материалов.

Руководствуясь проектом, можно организовать строительный процесс, установить последовательность работ и определить финансовые затраты
Архитектурный паспорт содержит копию лицензии проектировщика, пояснительную записку, расцветку фасадов, поэтажные планы, осевые разрезы и план кровли.
Обшивка дома под штукатурку
При использовании утеплительных плит, имеющих достаточно высокую плотность, например, пенопласт, фиброцемент или плотно спрессованная стекловата в матах, которые в дальнейшем будут покрываться сверху штукатуркой, обрешетка стен не нужна.
Примерная схема утепления стен под штукатурку
Чаще всего такой принцип применим на ровных кирпичных или железобетонных стенах. В этом случае обшивка производится следующим образом:
- на стене дома, на высоте, на которой будет устанавливаться утеплитель, закрепляется металлический профиль-держатель, подобранный согласно толщине выбранного утепляющих плит. Профиль выводят по уровню на идеально ровную горизонталь;
- стены очищаются от пыли, и, перед нанесением клея, смачиваются водой для лучшей адгезии;
- далее на плиты утеплителя наносится заранее разведенный специальный клей;
Утеплительные плиты можно монтировать на строительный клей
- первый ряд плит устанавливается на металлический профиль и крепко прижимается к стене;
- следующий ряд устанавливают на первый по системе кирпичной кладки – в перевязку;
- закрепив два-три ряда плит на клей, каждую из них дополнительно закрепляют грибками-дюбелями;
- далее работа продолжается по такой же системе до самого верха. Затем утеплитель точно также устанавливается на другие стены;
- когда слой клея под утеплителем высохнет, необходимо проклеить все углы здания, оконные и дверные откосы уголками с армирующей сеткой. Они закрепляются на тот же клей, его избыток снимается шпателем;
Армирующий уголок
- после просыхания уголков, армирующую сетку-серпянку нужно закрепить на всей утепленной поверхности;
- поверхность, на которую будет приклеиваться полотно серпянки, промазывается тонким слоем клея. Сверху него закрепляется армирующая сетка, приглаживается шпателем, и излишек клея также убирается;
- когда поверхность хорошо просохнет, ее нужно покрыть полимерной штукатуркой, слоем 2—3 мм;
- завершающим этапом будет наложение декоративной штукатурки, выбранной в соответствующим стиле оформления здания.
Лепнина
Одно из самых простых и эффектных решений — украшение фасада элементами из лепнины. Однако гипсовые элементы — самый неподходящий вариант, так как гипс на открытом воздухе «зацветает» и разрушается. Самый рациональный выбор – декор из пенополистирола. Пенополистирол классифицируется по прочности согласно ГОСТ 15588-86. Чем выше плотность материала, тем он прочнее. Для фасадных работ подойдет пенополистирол плотностью 25 (средняя прочность), 35 (высокая) и 50 (максимальная). Детали из этого материала изготавливаются путем терморезки по индивидуальным чертежам, причем физические свойства пенополистирола позволяют создавать детали сложной формы и любого профиля. По желанию заказчика на детали может быть нанесен защитный слой с добавлением мраморной крошки, армирующих элементов, латекса и пр.
При заказе можно также выбрать и тип краски. Хорошо себя показывает специальная резиновая краска – она дороже других, но по устойчивости покрытия ей практически нет равных. Можно колеровать обычной краской — это дешевле.
Поверхность элементов может иметь любую фактуру: гладкую, шероховатую, «состаренную» (с трещинками).
Оформление углов можно сделать, соединив на стыках два прямых руста, но проще купить специальные угловые.
Кстати, для лепнины из пенопласта существует специальный лак, который не блестит, не разъедает материал и выдерживает перепады температур.
Чертежи фасадов – определение и особенности
Чертеж фасада – это графическое изображение внешнего вида проектируемого здания с разных сторон, так называемый вид сбоку. Он обязательно содержит высотные отметки и другие размеры, которые определяют положение конструктивных элементов дома, видимых снаружи. В отличие от цветных изображений фасада, чертеж выполняется на плоскости и не содержит перспективных искажения, цвета или теней.
Для получения визуального представления о проектируемом доме дополнительно разрабатываются цветные фасады. Их главная цель – дать заказчику представление, как выглядит построенное здание. Нередко под общим термином «фасады» обозначаются обе описанные выше части проектной документации. Главные различия между ними таковы:
- Чертеж фасада дома относится к рабочей документации и необходим для создания кладочных чертежей и разработки конструктивно-технической и архитектурной части проекта;
- Фасады в цвете позволяют получить представление о внешнем облике и эстетических параметрах будущего здания, способах и материалах отделки, а также его архитектурных особенностях.
|
|
| Чертеж фасада | Фасад в цвете |
Чертежи фасадов домов и коттеджей выполняются в соответствии с проектными стандартами и правилами в едином стиле с другими частями документации. Это необходимо для того, чтобы облегчить чтение чертежей и сопоставление их между собой.
Единых нормативов и стандартов для разработки фасадов в цвете нет, однако, в большинстве случаев проектировщики и архитекторы стараются унифицировать всю разрабатываемую проектную документацию. Поэтому выполняются два варианта цветных фасадов – крупный для более простой визуализации и обычный в масштабе, аналогичном техническим чертежам.
Виды, особенности, материалы
При проектировании дома необходимо учитывать не только уют и комфорт внутреннего убранства дома, но его отделку снаружи. Наружная отделка требует тщательного подбора материалов и цветового решения, проработки всех нюансов в общем архитектурном стиле еще на этапе проектирования: поспешное принятие решения на этапе завершения строительства может привести к ошибкам.
Значение наружной отделки фасада
Ремонт фасада существующего здания и отделка нового дома преследуют несколько основных задач, которые логично вытекают из функциональных задач фасада сооружения. Это может быть:
- Защита от неблагоприятного воздействия внешней среды. Стены фасада – это несущие конструкции, которые защищают строение от сырости, перепадов температур, снежных наносов и обледенения, поэтому фасадная отделка дома защищает несущие конструкции и продлевает срок их эксплуатации – в первую очередь, в домах из дерева, ракушняка и кирпича.
- Фасад здания должен отличаться высокой огнестойкостью и качественной теплоизоляцией, но негорючие утеплители требуют защиты от УФ, влаги, ветра – при отделке жилых и административных зданий и осуществляется защита таких утеплителей.
- Фасады зданий должны хорошо решать задачи шумо- и звукоизоляции, пропускать в достаточном количестве воздух и не допускать образование конденсата. Все паронепроницаемые мембраны, пленки, специальные материалы требуют защиты от воздействия агрессивных сред, и наружная отделка как раз и решает эту задачу одновременно с приданием зданию декоративного и эстетического вида после ремонта или утепления.
Особенности составления проектов домов: чертежи и план как основная часть планирования
Определившись с планировкой дома, нужно мысленно представить жизнь семьи в здании, продумать все элементы, чтобы ничего не упустить. Поэтому не стоит спешить с созданием окончательного варианта планировки дома. Готовые чертежи и планы дома должны быть максимально совершенны, чтобы конечный результат удовлетворял всех домочадцев, а построенное жилище прослужило максимальное количество лет без реконструкции и переделок. Конечный вариант эскиза стоит обсудить на семейном совете, учитывая при этом все детали, вплоть до мелочей.
В первую очередь в схеме дома указывают желаемое количество этажей. Это может быть просторный одноэтажный дом, компактный двухэтажный коттедж или роскошный особняк в два яруса с мансардой.
Внутренняя планировка, изображаемая на чертежах зданий, должна включать такие зоны:
- жилые комнаты;
- хозяйственные помещения;
- зоны общего пользования;
- дополнительные пристройки.
Одноэтажный дом разграничивают на зоны с помощью перегородок, а также размещая помещения однотипной функциональности в одном крыле. В двухэтажных коттеджах спальни, гостевые и детские комнаты традиционно располагаются на втором этаже, а на первом находятся хозяйственные и служебные помещения общего пользования.
Виды декоративной обшивки
Современные материалы позволяют сделать на деревянной стене имитацию кирпичной кладки или же наоборот — кирпичный дом преобразить в деревянный сруб. Для этого используют такие облицовки, как сайдинг, изготовленный из разных материалов, деревянную вагонку, блок-хаус, термопанели, керамическую или каменную плитку и другие. Необходимо узнать заранее, как каждая из обшивок крепится и как в итоге выглядит — от этого во многом будет зависеть, какую систему утепления для нее выбирать.
Клинкерные термопанели
Клинкерные термопанели — это один из современных материалов для утепления и оформления фасадов.
Дом, обшитый клинкерными термопанелями
Они относительно недавно появились на строительном рынке, и уже успели завоевать широкую популярность. Это совсем неудивительно, так как они имеют много положительных качеств.
- Одно из главных достоинств —этот материал выполняет сразу же две функции: это утепление и декоративная обшивка.
- Панели идеально имитируют кирпичную кладку, и производятся в различной цветовой гамме, поэтому могут быть подобраны под любой стиль и вкус.
- Они придают поверхности абсолютную аккуратность и эстетичность.
- Такой вид обшивки отличается удобством и относительной простотой монтажа на стену.
- Термопанели могут быть применены для обшивки любой — деревянной или кирпичной поверхности.
- Небольшой вес панелей дает возможность обойтись без дополнительного укрепления фундамента старого здания.
- Так как материалы имеют низкий процент водопоглощения, фасад можно мыть из шлага водой под большим напором.
- Плотность соединения панелей на стене не позволяет холодному воздуху проникать к стене дома.
Термопанели имеют пенополиуретановую или пенополистирольную основу, на которую впрессована клинкерная плитка. Теплая подложка увеличивает теплоизоляционные качества панелей в два — четыре раза, и создает оптимальный паропроницаемый микроклимат для стен, что позволяет сохранить материал, из которого возведен дом, на более долгий срок.
Структура панелей — слой утеплителя и декоративная плитка «под кирпич»
- Клинкерная плитка защищает утеплительную основу от воздействия внешних факторов, таких, как ветер, осадки, прямые солнечный ультрафиолетовые лучи.
- Клинкерные панели очень надежно крепятся к стене и способны прослужить без ремонтных работ 45—60 лет, не теряя первоначального вида.
- Панели собираются в единую плоскость с помощью имеющихся замковых соединений (гребней и пазов), что обеспечивает плотное сцепление.
Монтаж панелей достаточно прост и интуитивно понятен
Производятся прямые, стеновые термопанели и угловые элементы к ним, которые облегчают задачу оформления углов здания, делая их абсолютно аккуратными, не отличающимися от общего вида стен.
Термопанели комплектуются необходимыми доборными профильными элементами
Термопанели укреплены пластиковыми направляющими, которые не допускают деформации и механических напряжений облицовочного материала.
Монтаж термопанелей
Прежде чем начинать монтаж панелей на стену, необходимо провести ее ревизию на предмет различных выпуклостей, значительных углублений и сколов, которые могут сильно помещать быстрому монтажу. Поэтому необходимо привести поверхность стен в идеально ровное состояние.
Ревизия стен перед монтажом термопанелей
При монтаже панелей на поверхности, которые имеют большие неровности, например, стены бревенчатого сруба, на них устраивается обрешетка из деревянного бруса.
Монтаж клинкерных термопанелей может осуществляться непосредственно на стены или на обрешетку
В этом случае, очень важно правильно рассчитать расположение элементов обрешетки, чтобы закрепление панелей прошло успешно. На каждую из закрепляемых панелей должно приходиться как минимум три бруска обрешетки, чтобы создать необходимую жесткость обшивки
Размеры термопанелей, места крепления к стенам
На схеме хорошо видны места креплений к стене или обрешетке и размеры самой панели и выступающих замковых гребней.
После полной обшивки поверхности стен швы между отдельными плитками заполняются специальной затиркой. Это окончательно изолирует утеплитель от внешних воздействий, придает оформлению стен вид натуральной кирпичной кладки.
Проекты одноэтажных домов
Работы по строительству одноэтажных домов проводятся достаточно быстро. Монтажные работы стоят недорого. Следует позаботиться на этапе проектирования, чтобы проходных помещений было меньше
При создании чертежа важно определить количество жильцов
Планировка жилых домов должна быть тщательной. Их теплоотдача гораздо выше, чем в многоквартирных зданиях. Причина в том, что все наружные стены сообщаются с улицей, к тому же нет подъезда
Локализации помещению в здании важно уделить особое внимание
Вам будет интересно: Что такое поэтажный план и экспликация квартиры, здания

Планировку для одноэтажного дома можно сделать самостоятельно двумя способами:
- Нарисовать вручную. Тогда потребуется миллиметровая бумага. При ее отсутствии подойдет лист с клетчатой разлиновкой. Этот метод подходит для людей, опытных в черчении. Иначе в чертеже будет много неточностей;
- Применить проектировочную компьютерную программу. Таким образом, удастся создать не только главные наброски, а полный чертеж дома по всем нормам строительства. Чтобы не возникло ошибок, стоит покупать лицензионные программы;
- Воспользоваться 3D-редактором. Это выбор для творческих людей. Создается трехмерный проект, прекрасно передающий размеры и локализацию помещений, дизайнерские идеи. Таким образом, удастся создать разрез промышленного здания или жилого дома.
Даже если дом небольшой, распределение пространства можно сделать грамотно
При создании чертежа важно учесть следующие нюансы:
Количество комнат с учетом их назначения, их локализацию
Важно учесть не только главные помещения, созданные для каждого жильца и функциональные комнаты (санузел, обеденная зона), но и гостиную, кладовку, прихожую;
Спальни следует создавать маленькими, а гостиную – просторной;
Увлечения жильцов тоже следует учесть
Некоторым хозяевам важно предусмотреть баню, тренажерный или читальный зал;
Спальню детей стоит планировать возле комнаты родителей;
Чтобы водопровод и канализационная система не занимали много места, обеденную зону, санузел и бойлер лучше планировать в одной линии;
Сохранению тепла будет способствовать тамбур или утепленная веранда;
При расчете стоит принять во внимание, что на каждого взрослого выделяется 8 кв. м
пространства;
Можно построить цоколь, чтобы увеличить полезное пространство.
Фибробетон
Это новый и весьма дорогой материал (цена обусловлена трудоемким процессом изготовления). Детали из него отливают в специальных пресс-формах. Фибробетон применяют для наружной отделки, но отрицательных отзывов он собрал немало. Дело в том, что бетон поглощает влагу, а это значит, что со временем декор придет в негодность. Для надежности фибробетон армируют – это делает его более прочным. Морозостойкость материала составляет около 200 циклов, но «бывалые» часто жалуются, что детали отваливаются, а вот небольшие сколы фибробетон не портят, так как он прокрашивается в массе, и скол всегда того же цвета, что и поверхность. Отрицательный фактор данной технологии – большой вес детали. Кроме того, возникает проблема при заделывании стыков – зачастую в фибробетоне это сделать невозможно.
Проекты одноэтажных домов
Работы по строительству одноэтажных домов проводятся достаточно быстро. Монтажные работы стоят недорого. Следует позаботиться на этапе проектирования, чтобы проходных помещений было меньше
При создании чертежа важно определить количество жильцов
Планировка жилых домов должна быть тщательной. Их теплоотдача гораздо выше, чем в многоквартирных зданиях. Причина в том, что все наружные стены сообщаются с улицей, к тому же нет подъезда
Локализации помещению в здании важно уделить особое внимание

Планировку для одноэтажного дома можно сделать самостоятельно двумя способами:
- Нарисовать вручную. Тогда потребуется миллиметровая бумага. При ее отсутствии подойдет лист с клетчатой разлиновкой. Этот метод подходит для людей, опытных в черчении. Иначе в чертеже будет много неточностей;
- Применить проектировочную компьютерную программу. Таким образом, удастся создать не только главные наброски, а полный чертеж дома по всем нормам строительства. Чтобы не возникло ошибок, стоит покупать лицензионные программы;
- Воспользоваться 3D-редактором. Это выбор для творческих людей. Создается трехмерный проект, прекрасно передающий размеры и локализацию помещений, дизайнерские идеи. Таким образом, удастся создать разрез промышленного здания или жилого дома.
Даже если дом небольшой, распределение пространства можно сделать грамотно
При создании чертежа важно учесть следующие нюансы:
Количество комнат с учетом их назначения, их локализацию
Важно учесть не только главные помещения, созданные для каждого жильца и функциональные комнаты (санузел, обеденная зона), но и гостиную, кладовку, прихожую;
Спальни следует создавать маленькими, а гостиную – просторной;
Увлечения жильцов тоже следует учесть
Некоторым хозяевам важно предусмотреть баню, тренажерный или читальный зал;
Спальню детей стоит планировать возле комнаты родителей;
Чтобы водопровод и канализационная система не занимали много места, обеденную зону, санузел и бойлер лучше планировать в одной линии;
Сохранению тепла будет способствовать тамбур или утепленная веранда;
При расчете стоит принять во внимание, что на каждого взрослого выделяется 8 кв. м
пространства;
Можно построить цоколь, чтобы увеличить полезное пространство.
Особенности составления проектов домов: чертежи как основная часть планирования
Определившись с планировкой дома, нужно мысленно представить жизнь семьи в здании, продумать все элементы, чтобы ничего не упустить. Поэтому не стоит спешить с созданием окончательного варианта планировки дома. Готовые чертежи и планы дома должны быть максимально совершенны, чтобы конечный результат удовлетворял всех домочадцев, а построенное жилище прослужило максимальное количество лет без реконструкции и переделок. Конечный вариант эскиза стоит обсудить на семейном совете, учитывая при этом все детали, вплоть до мелочей.
В первую очередь в схеме дома указывают желаемое количество этажей. Это может быть просторный одноэтажный дом, компактный двухэтажный коттедж или роскошный особняк в два яруса с мансардой. Внутренняя планировка, изображаемая на чертежах зданий, должна включать такие зоны:
- жилые комнаты;
- хозяйственные помещения;
- зоны общего пользования;
- дополнительные пристройки.
Одноэтажный дом разграничивают на зоны с помощью перегородок, а также размещая помещения однотипной функциональности в одном крыле. В двухэтажных коттеджах спальни, гостевые и детские комнаты традиционно располагаются на втором этаже, а на первом находятся хозяйственные и служебные помещения общего пользования.


































